Riferimento annuncio 127750
        
    
    Fabbricato commerciale Via Croce Rossa, 115, 80047 San Giuseppe NA, Italia, 80047 San Giuseppe Vesuviano (NA)
                
                510,00
            
            
€ 240.000    
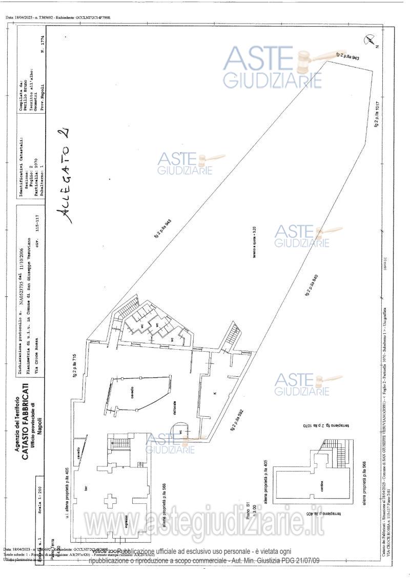
                Vendita in attesa dell'emissione del nuovo bando d'asta. LOTTO 1: Diritto di piena proprietà sul capannone a destinazione commerciale su due livelli, terra e seminterrato, con accesso dalla Via Croce Rossa n.115 della superficie commerciale di mq. 440 della consistenza catastale di mq. 510 circa, composto da ingresso, bar, zona ricreativa, cucina, servizi igienici, ristorante, cantina, oltre annessa area pertinenziale della superficie di mq. 2000. Ultimo prezzo base € 240.000,00 (offerta minima € 180.000,00). Giudice Dott. Rosa Napolitano. Curatore Dott. Pierpaolo Rubino.  Rif. Tribunale di Nola - Fallimentare (nuovo rito) n. 14/2020
            
   
| Superficie | 510,00 mq | 
|---|---|
| Vani | |
| Bagni | |
| Piano | 
| Tipologia di vendita | Giudiziaria | 
|---|---|
| Modalità di vendita | Asincrona telematica | 
| Termine presentazione offerte | 21/10/2025 ore 12:00 | 
| Data e ora inizio gara | 22/10/2025 ore 12:00 | 
 
                         
                         
                         
                         
                         
                         
                         
                         
                         
                         
                         
                         
                         
                         
                         
                         
                         
                         
                         
                         
                         
                         
                         
                         
                         
                         
                         
                         
                         
                         
                         
                         
                         
                         
                         
                         
                         
                         
                         
                         
                         
                         
                         
                         
                         
                         
                         
                         
                         
                         
                         
                         
                         
                         
                         
                        