highlight_off
Riferimento annuncio 309684 info

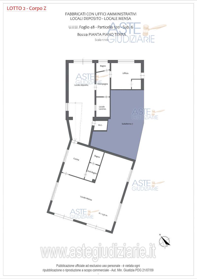
Fabbricato commerciale Contrada Sofferetti sn, 87069 San Demetrio Corone (CS)

€ 434.688
Vendita all'asta Senza incanto, con gara telematica sincrona - LOTTO 2: unità immobiliari, identificate nel N.C.E.U. al fg. 48, p.lla 518 sub 1 (locale deposito, sito a San Demetrio Corone, contrada Sofferetti della superficie commerciale di 23,28 mq, composto da un va. Prezzo base € 434.688,43 (offerta minima € 326.016,32). Data vendita 22/12/2025 ore 16:00. Giudice Dott. Giuliana Gaudiano. Professionista delegato alla vendita Avv. Luigi De Gaetano - Email "avv.luigidegaetano@gmail.com". Custode Giudiziario Avv. Luigi De Gaetano - Email "avv.luigidegaetano@gmail.com". Rif. Tribunale di Castrovillari - Esecuzione immobiliare post legge 80 n. 92/2022

Tipologia di vendita Giudiziaria
Modalità di vendita Sincrona telematica
Termine presentazione offerte 01/01/1900 ore 00:00
Data e ora inizio gara 22/12/2025 ore 16:00
Codice ID astegiudiziarie.it 4331417
€ 434.688

Ti interessa questa vendita?

north_east

Clicca qui per essere indirizzato alla scheda sul sito di provenienza

Bene di astegiudiziarie.it