highlight_off
Riferimento annuncio 311133 info

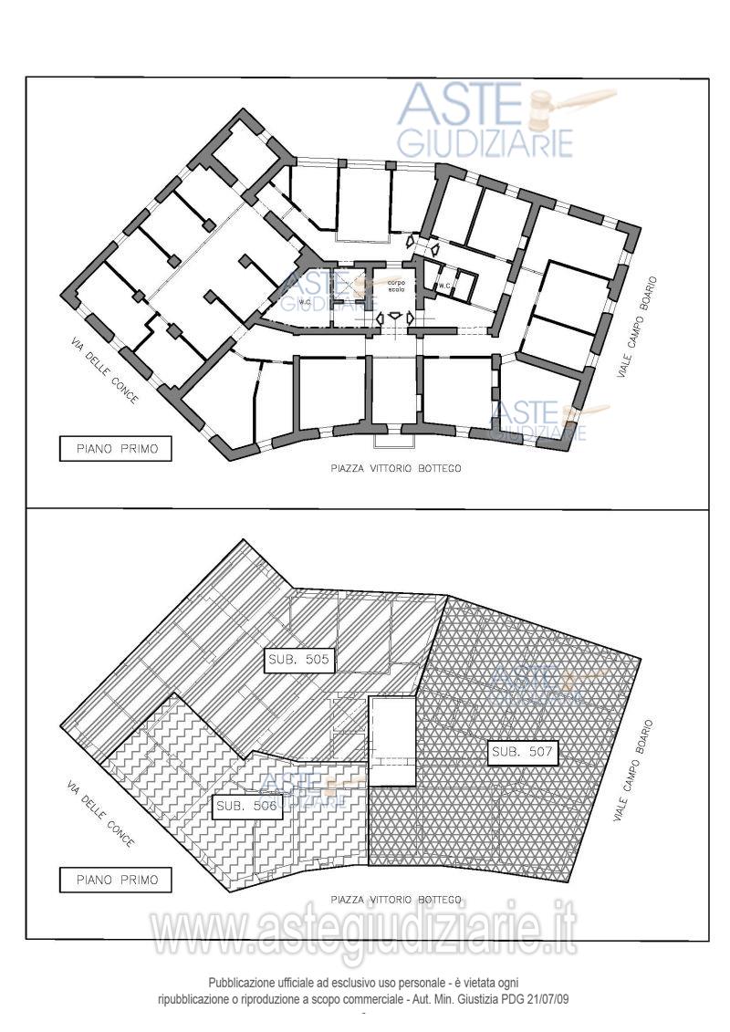
Fabbricato commerciale Piazza Vittorio Bottego, 51, 00154 Roma RM, Italia, 00100 Roma (RM)

1499,00
6
€ 3.500.000
Vendita all'asta Senza incanto, con gara telematica asincrona - LOTTO UNICO: fabbricato cielo - terra in Roma piazza Vittorio Bottego 51. Il compendio immobiliare seppur unito nell’uso e nella consistenza è articolato in distinte unità immobiliari ed è composto da piano terra, piano primo, piano secondo coperture e piano interrato. Prezzo base € 3.500.000,00 (offerta minima € 2.625.000,00). Data inizio operazioni di vendita: 23/10/2025 ore 11:00. Giudice Iappelli. Professionista delegato alla vendita Avv. Roberto Tartaglia. Custode Giudiziario Ivg Di Roma Srl - Email "pvp@visiteivgroma.it"; Tel. 0689569801. Rif. Tribunale di Roma - Espropriazione immobiliare (cartabia) n. 770/2023

Superficie 1499,00 mq
Vani
Bagni 6
Piano

Tipologia di vendita Giudiziaria
Modalità di vendita Asincrona telematica
Termine presentazione offerte 01/01/1900 ore 00:00
Data e ora inizio gara 23/10/2025 ore 11:00
Codice ID astegiudiziarie.it 4330718
1499,00
6
€ 3.500.000

Ti interessa questa vendita?

north_east

Clicca qui per essere indirizzato alla scheda sul sito di provenienza

Bene di astegiudiziarie.it