highlight_off
Riferimento annuncio 302392 info

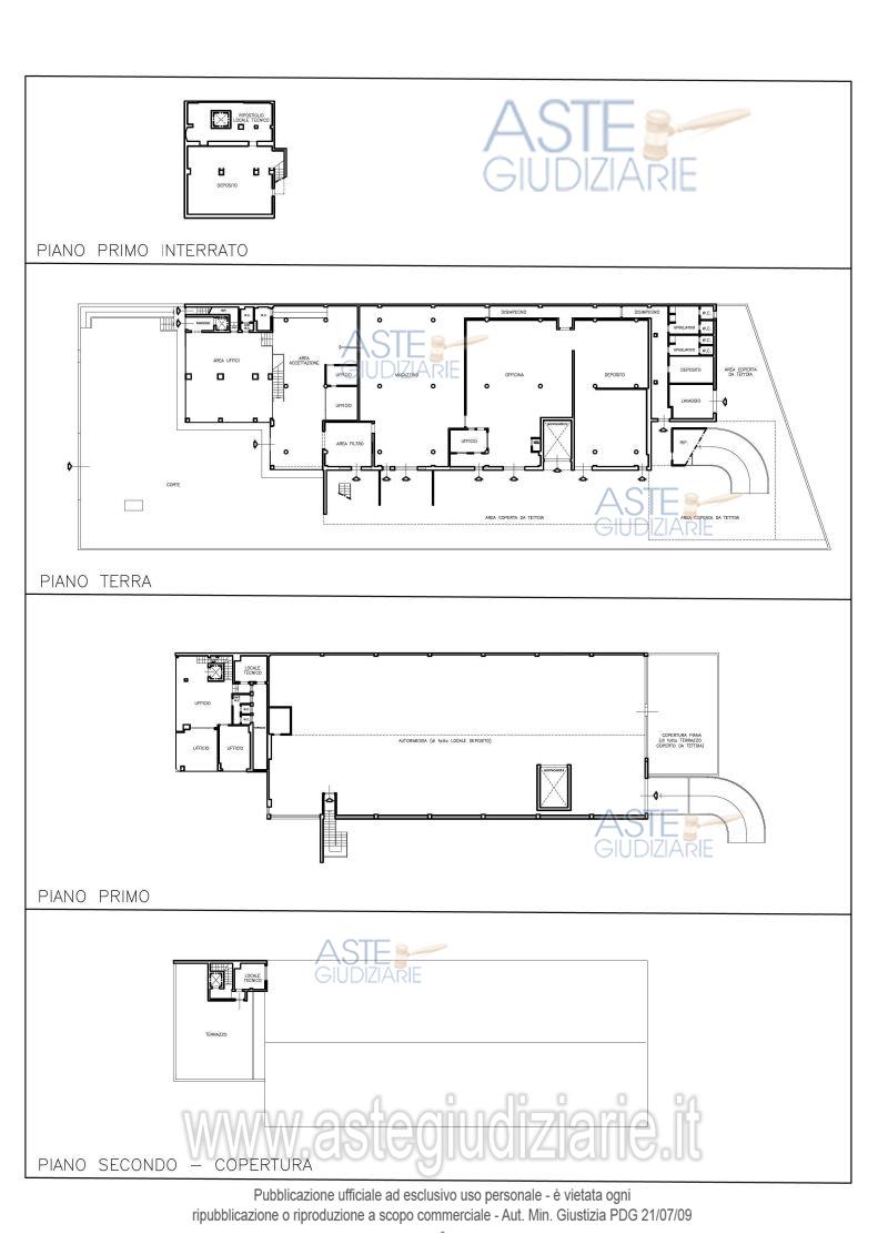
Fabbricato commerciale Via Tivoli, 36, 00156 Roma RM, Italia, 00100 Roma (RM)

2172,62
4
€ 1.678.000
Vendita all'asta Senza incanto, con gara telematica asincrona - LOTTO UNICO: Piena proprietà su complesso edilizio sito in Roma, con accesso da Via Tivoli n. 36 che si presenta allo stato attuale così composto: BENE 1: Fabbricato di categoria D/8 composta da un piano interrato, piano terra e piano primo; BENE 2: Appartamento composto da un piano terra, piano primo, piano secondo . Prezzo base € 1.678.000,00 (offerta minima € 1.258.500,00). Data inizio operazioni di vendita: 14/07/2026 ore 14:00. Giudice Dott. Giuseppe Lauropoli. Professionista delegato alla vendita Avv. Andrea Belli. Custode Giudiziario Ivg Di Roma Srl - Email "pvp@visiteivgroma.it". Rif. Tribunale di Roma - Esecuzione immobiliare post legge 80 n. 237/2022

Superficie 2172,62 mq
Vani
Bagni 4
Piano

Tipologia di vendita Giudiziaria
Modalità di vendita Asincrona telematica
Termine presentazione offerte 13/07/2026 ore 23:59
Data e ora inizio gara 14/07/2026 ore 14:00
Codice ID astegiudiziarie.it 4325575
2172,62
4
€ 1.678.000

Ti interessa questa vendita?

north_east

Clicca qui per essere indirizzato alla scheda sul sito di provenienza

Bene di astegiudiziarie.it