highlight_off
Riferimento annuncio 308806 info

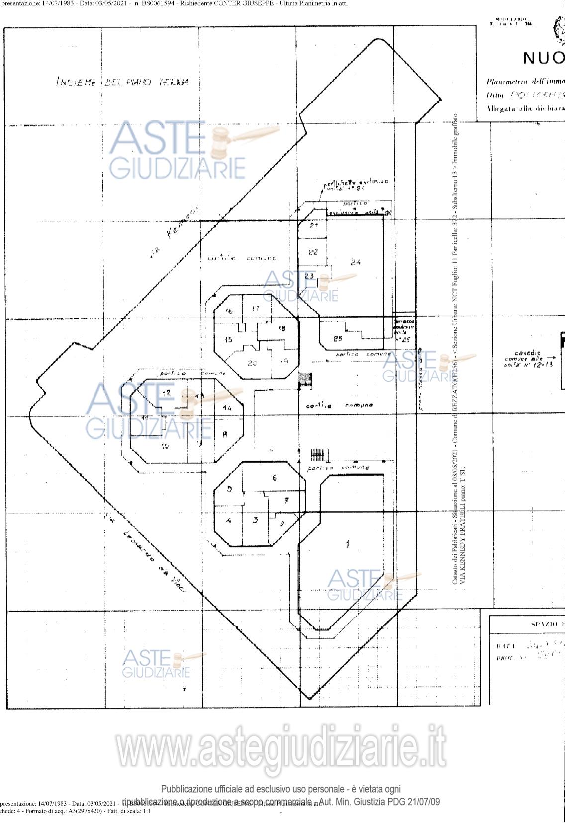
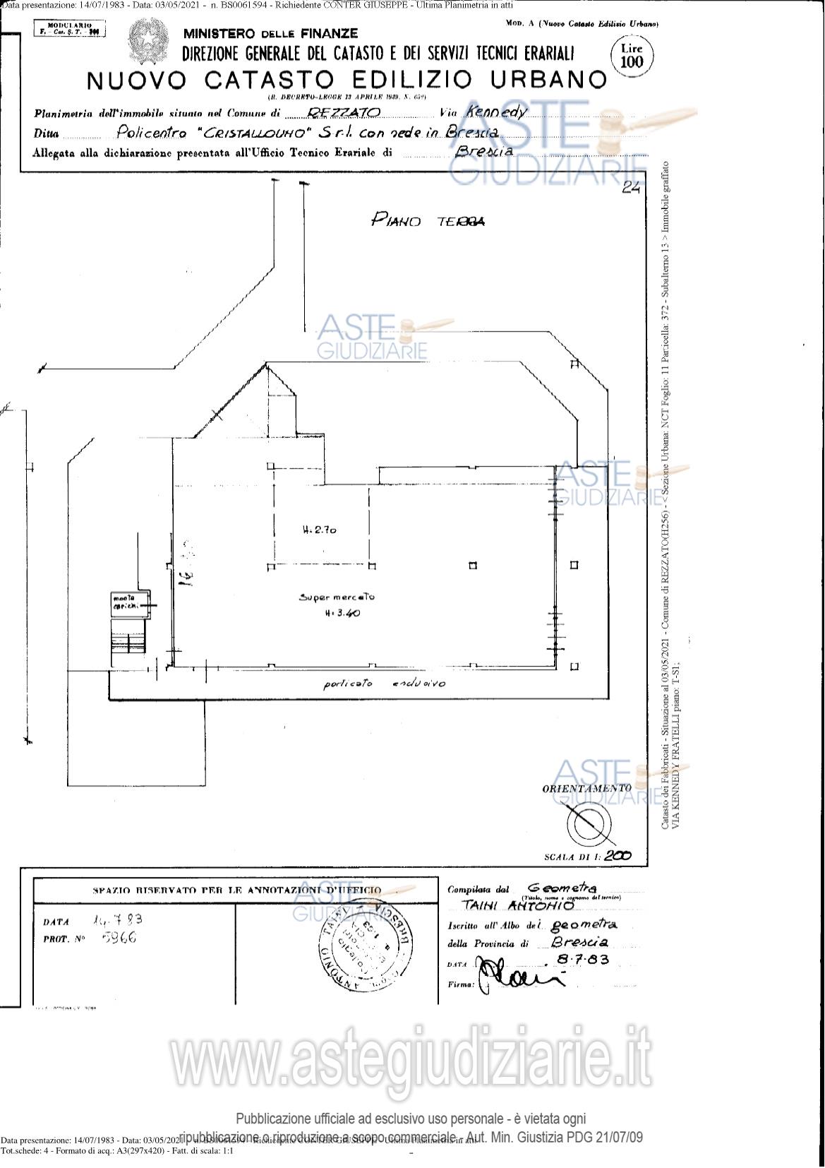
Fabbricato commerciale Via Fratelli Kennedy, 25086 Rezzato (BS)

€ 367.133
Vendita all'asta Competitiva, con gara telematica asincrona - LOTTO 18: LOTTO 18 Piena proprietà. In Comune di REZZATO (BS) – Via F.lli Kennedy. Trattasi di punto vendita al dettaglio. Prezzo base € 367.132,50. Data inizio operazioni di vendita: 04/11/2025 ore 12:30. Professionista delegato alla vendita Not. Francesco Ambrosini - Email "credenzialiaste@gmail.com". Curatore Dott. Stefano Lancelotti - Email "stefanolancelotti@libero.it". Rif. Tribunale di Brescia - Fallimentare (nuovo rito) n. 5/2023

Tipologia di vendita Giudiziaria
Modalità di vendita Asincrona telematica
Termine presentazione domande 01/01/1900 ore 00:00
Data e ora inizio gara 04/11/2025 ore 12:30
Codice ID astegiudiziarie.it 4330666
€ 367.133

Ti interessa questa vendita?

north_east

Clicca qui per essere indirizzato alla scheda sul sito di provenienza

Bene di astegiudiziarie.it