highlight_off
Riferimento annuncio 236992 info

Fabbricato commerciale Contrada Madonna della Croce / Montedoro, 70015 Noci (BA)

5599,00
€ 1.616.625
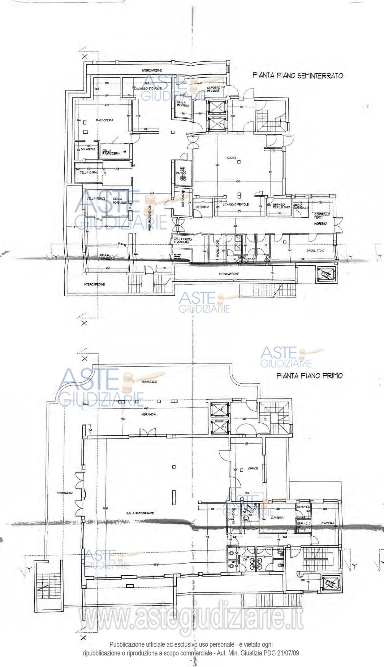
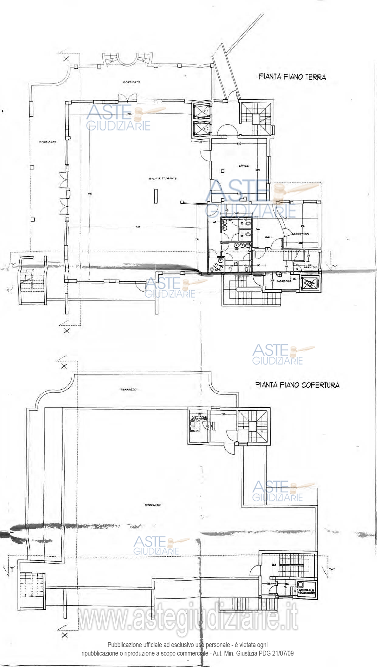
Vendita all'asta Senza incanto, con gara telematica asincrona - LOTTO 30: Diritti di piena proprietà complesso immobiliare costituito da un fabbricato principale destinato a sala ricevimenti, sala di ristorazione e locali accessori, da un fabbricato secondario destinato a lavanderia, deposito e cisterna interrata, dallepertinenze esterne e da una cabina elettrica a servizio del compendio. Prezzo base € 1.616.625,00 (offerta minima € 1.212.469,00). Data inizio operazioni di vendita: 05/05/2026 ore 10:00. Giudice Dott. Giuseppe Marseglia. Professionista delegato alla vendita Avv. Eugenio Mangone - Tel. 080/5537133. Rif. Tribunale di Bari - Fallimentare (nuovo rito) n. 122/2019
Vendita all'asta Senza incanto, con gara telematica asincrona - LOTTO 30: Право собственности на комплекс недвижимости, состоящий из основного здания, предназначенного для проведения мероприятий, ресторана и вспомогательных помещений, из вспомогательного здания, предназначенного для прачечной, склада и подземного резервуара, из внешних прилегающих территорий и электрической подстанции, обслуживающей комплекс. Конкретно лот оценивается следующими недвижимыми объектами: - Основное здание на трех этажах, плюс плоская крыша, где на первом этаже расположены зона ресепшн, холл, ресторан/принимающая зона, кухня и помещения обслуживания, на втором этаже офисы, ресторан/принимающая зона, кухня и помещения обслуживания, а подвальный этаж предназначен под кухню, хранение продуктов и вспомогательные помещения; - Вторичное здание на двух этажах, где в подвальном этаже расположены прачечная, склад и подземный резервуар, а на крыше, на уровне дороги, предусмотрена парковка для автомобилей. А также вспомогательные внешние помещения и электрическая подстанция, обслуживающая комплекс. . Prezzo base € 1.616.625,00 (offerta minima € 1.212.469,00). Data inizio operazioni di vendita: 05/05/2026 ore 10:00. Giudice Dott. Giuseppe Marseglia. Professionista delegato alla vendita Avv. Eugenio Mangone - Tel. 080/5537133. Rif. Tribunale di Bari - Fallimentare (nuovo rito) n. 122/2019

Superficie 5599,00 mq
Vani
Bagni
Piano

Tipologia di vendita Giudiziaria
Modalità di vendita Asincrona telematica
Termine presentazione offerte 04/05/2026 ore 12:00
Data e ora inizio gara 05/05/2026 ore 10:00
Codice ID astegiudiziarie.it 4277102
5599,00
€ 1.616.625

Ti interessa questa vendita?

north_east

Clicca qui per essere indirizzato alla scheda sul sito di provenienza

Bene di astegiudiziarie.it