highlight_off
Riferimento annuncio 319723 info

Fabbricato commerciale Via Piave, 75, 04100 Latina LT, Italia, 04100 Latina (LT)

500,00
€ 2.251.800
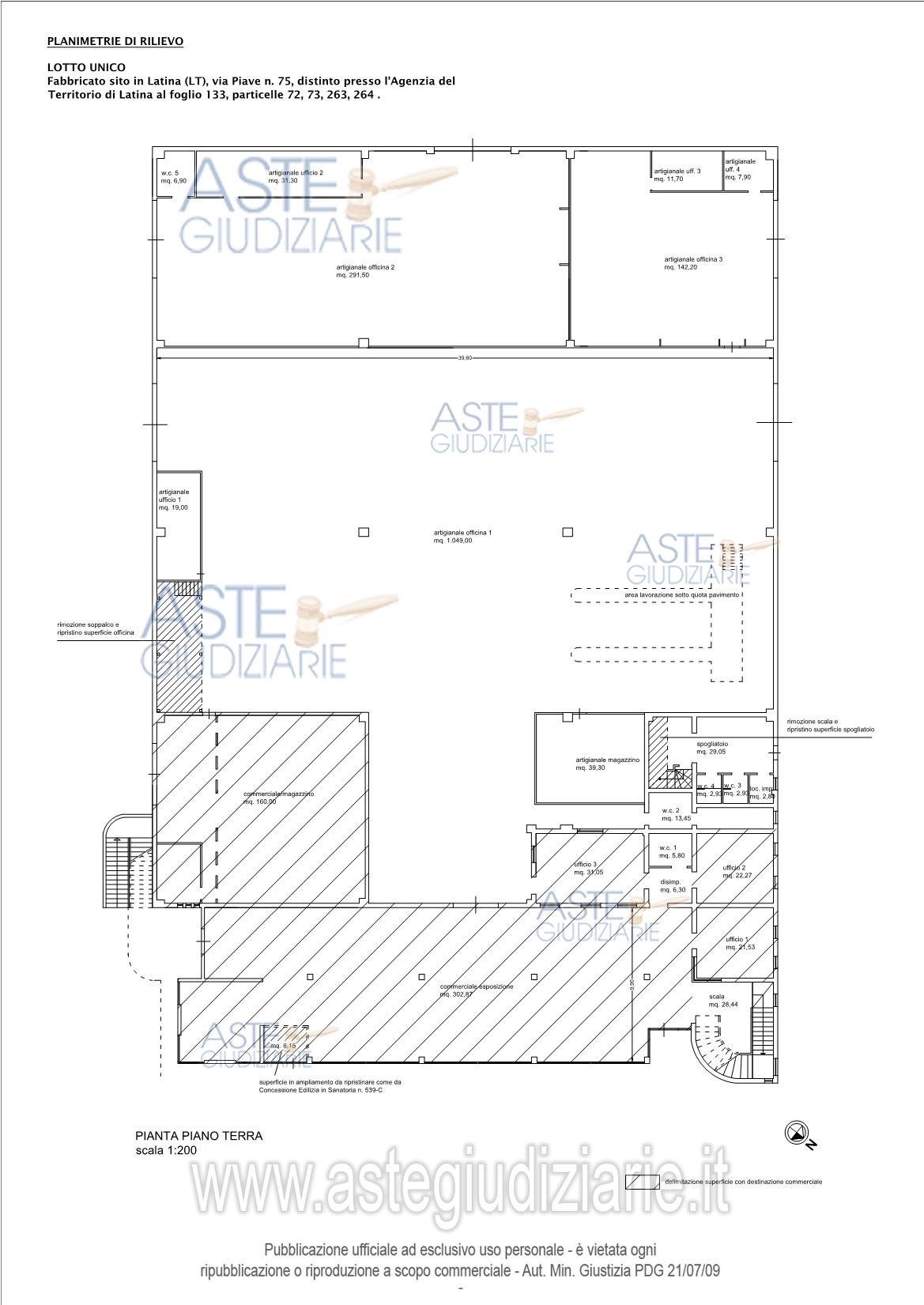
Vendita all'asta Senza incanto, con gara telematica asincrona - LOTTO UNICO: compendio artigianale e commerciale sviluppato in parte su due piani . Prezzo base € 2.251.800,00 (offerta minima € 1.688.850,00). Data inizio operazioni di vendita: 13/01/2026 ore 16:00. Professionista delegato alla vendita Not. Maria Cristina Ciprari - Email "mciprari@notariato.it"; Tel. 0773488996. Custode Giudiziario Not. Maria Cristina Ciprari - Email "mciprari@notariato.it"; Tel. 0773488996. Rif. Tribunale di Latina - Esecuzione immobiliare post legge 80 n. 71/2021

Superficie 500,00 mq
Vani
Bagni
Piano

Tipologia di vendita Giudiziaria
Modalità di vendita Asincrona telematica
Termine presentazione offerte 12/01/2026 ore 13:00
Data e ora inizio gara 13/01/2026 ore 16:00
Codice ID astegiudiziarie.it 4338128
500,00
€ 2.251.800

Ti interessa questa vendita?

north_east

Clicca qui per essere indirizzato alla scheda sul sito di provenienza

Bene di astegiudiziarie.it