highlight_off
Riferimento annuncio 83454 info

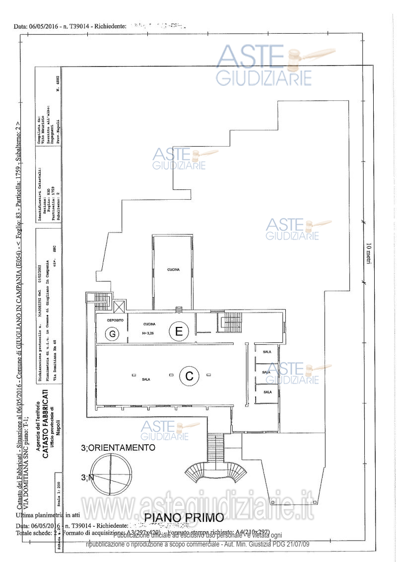
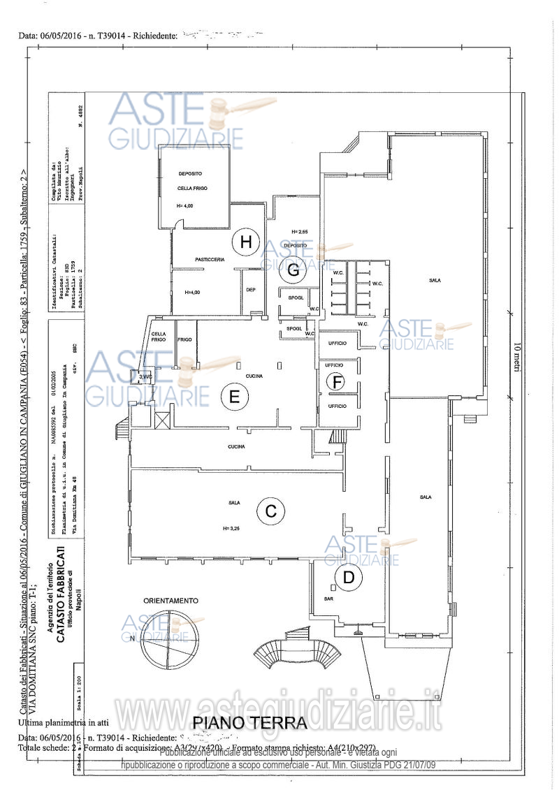
Fabbricato commerciale VIA DOMITIANA KM. 48, 80014 Giugliano in Campania (NA)

2500,00
€ 293.665
Vendita all'asta Senza incanto, con gara telematica asincrona - LOTTO UNICO: Piena proprietà di complesso immobiliare ad uso ricettivo sito nel Comune di Giugliano in Campania (NA), alla via Domitiana Km. 48, articolato su due livelli fuori terra. Prezzo base € 293.664,56 (offerta minima € 220.248,42). Data inizio operazioni di vendita: 21/01/2026 ore 10:30. Professionista delegato alla vendita Not. Fulvia Mustilli - Email "fmustilli@notariato.it"; Tel. 0815521090. Custode Giudiziario Not. Fulvia Mustilli - Email "fmustilli@notariato.it"; Tel. 0815521090. Rif. Tribunale di Napoli - Esecuzione immobiliare post legge 80 n. 1072/2012

Superficie 2500,00 mq
Vani
Bagni
Piano

Tipologia di vendita Giudiziaria
Modalità di vendita Asincrona telematica
Termine presentazione offerte 01/01/1900 ore 00:00
Data e ora inizio gara 21/01/2026 ore 10:30
Codice ID astegiudiziarie.it 4203249
2500,00
€ 293.665

Ti interessa questa vendita?

north_east

Clicca qui per essere indirizzato alla scheda sul sito di provenienza

Bene di astegiudiziarie.it