highlight_off
Riferimento annuncio 307588 info

Fabbricato commerciale Via Ribolle, 37, 47121 Forlì FC, Italia, 47100 Forlì (FC)

€ 187.500
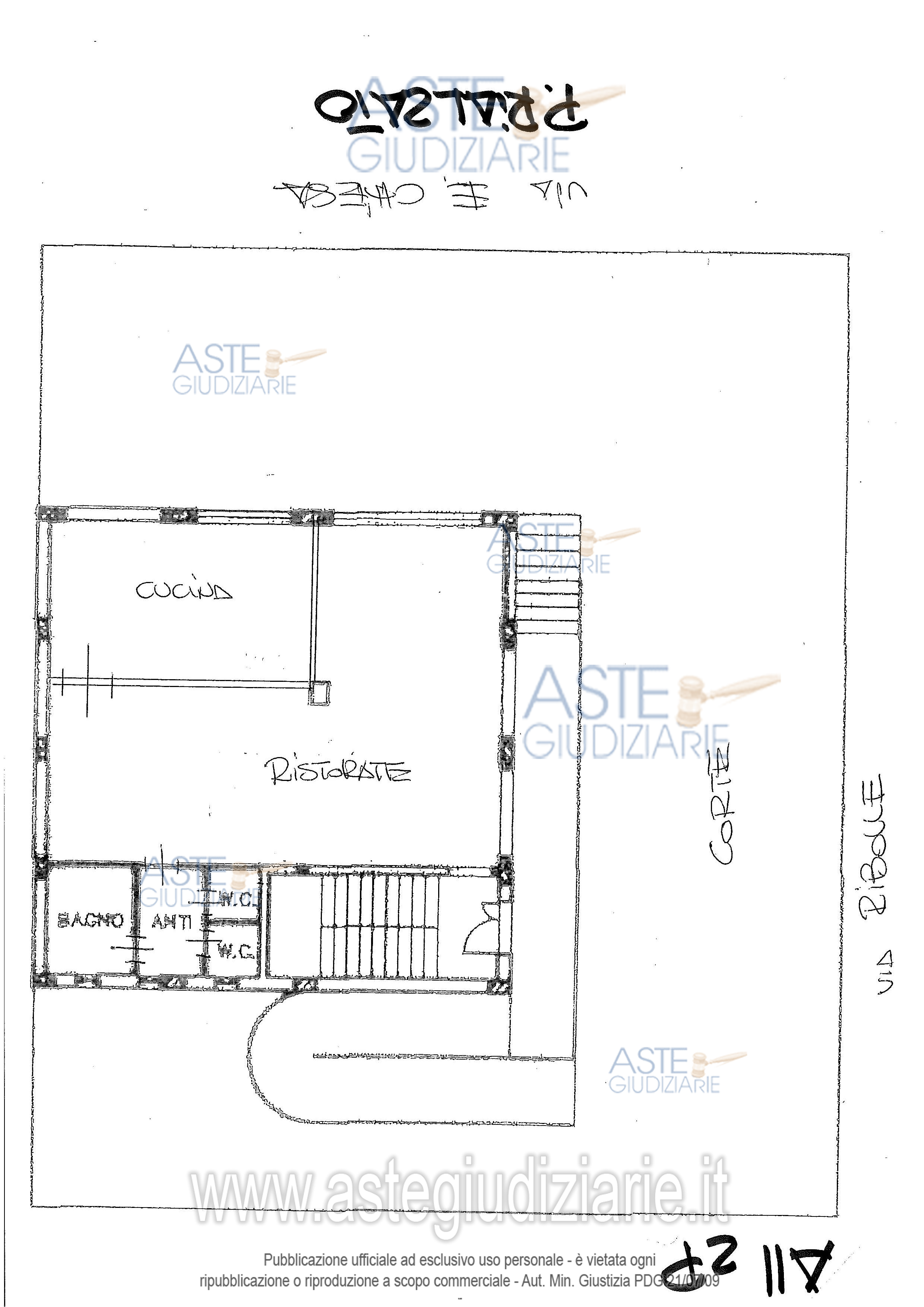
Vendita all'asta Senza incanto, con gara telematica asincrona - LOTTO UNICO: 1/1 di fabbricato urbano adibito a circolo ricreativo con corte esclusiva, in Forlì, Via Ribolle n. 37 in angolo con Via E. Chiesa, distribuito sui piani interrato, terra-rialzato e primo. Superficie commerciale complessiva mq. 232, occupato in forza di contratto di locazione opponibile alla procedura con decorrenza dal 01/06/2021 e durata di anni 6 tacitamente rinnovabili; per ulteriori informazioni rivolgersi al Custode IVG Forlì. Prezzo base € 187.500,00 (offerta minima € 140.625,00). Data inizio operazioni di vendita: 25/11/2025 ore 09:00. Giudice Dott. Fabio Santoro. Professionista delegato alla vendita Not. Nizar Ben M’Barek - Email "esecuzioninotai@gmail.com"; Tel. 054320059. Custode Giudiziario Ivg Forli’ Srl - Email "ivg.forli@gmail.com"; Tel. 0543473480. Rif. Tribunale di Forlì - Espropriazione immobiliare (cartabia) n. 84/2023

Tipologia di vendita Giudiziaria
Modalità di vendita Asincrona telematica
Termine presentazione offerte 01/01/1900 ore 00:00
Data e ora inizio gara 25/11/2025 ore 09:00
Codice ID astegiudiziarie.it 4329728
€ 187.500

Ti interessa questa vendita?

north_east

Clicca qui per essere indirizzato alla scheda sul sito di provenienza

Bene di astegiudiziarie.it