highlight_off
Riferimento annuncio 144350 info

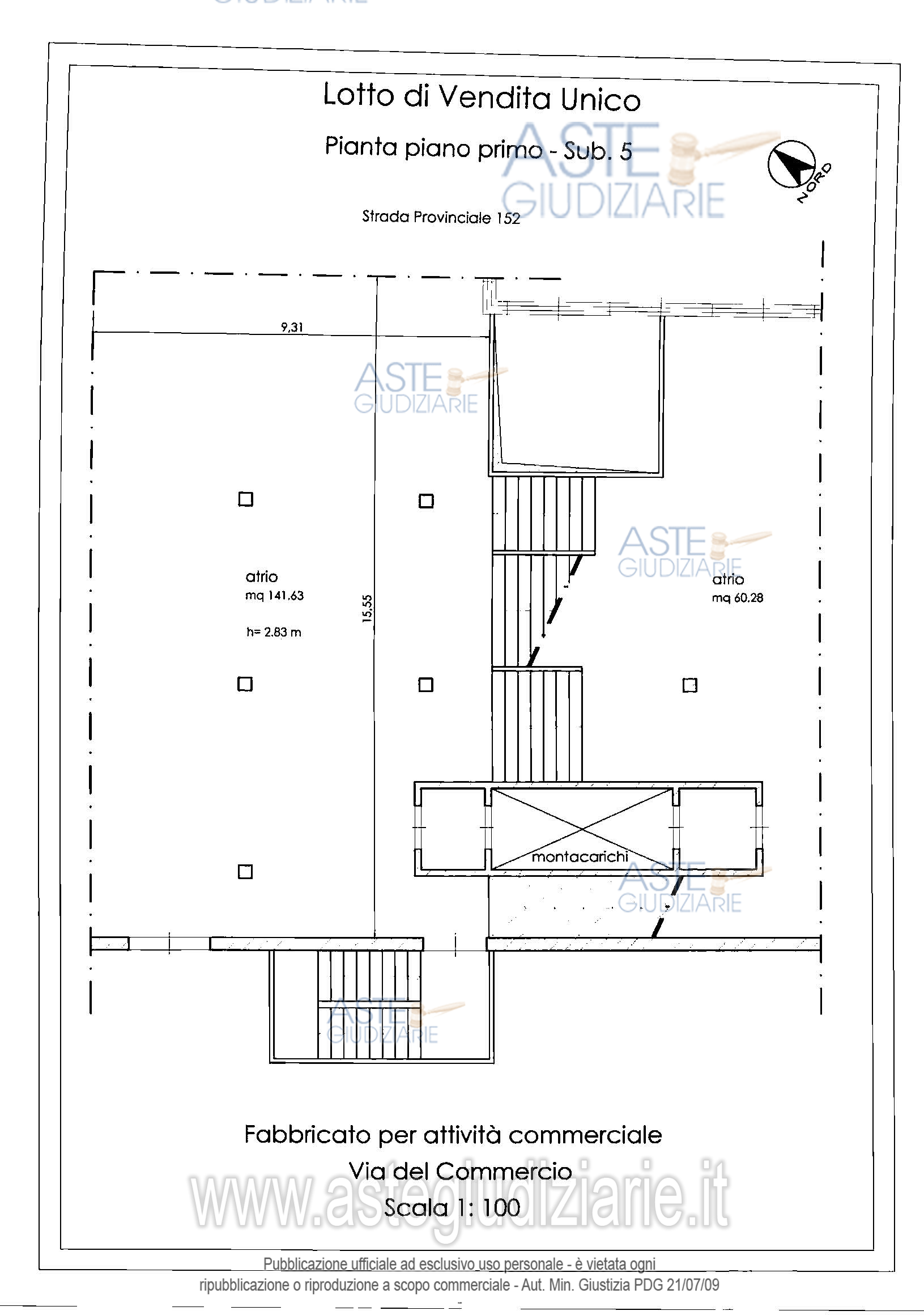
Fabbricato commerciale Via del Commercio 11-15, 58022 Follonica (GR)

1196,31
€ 682.856
Vendita all'asta Senza incanto, con gara telematica asincrona - LOTTO UNICO: piena proprietà di porzione di edificio commerciale con corte esclusiva con ingresso da pubblica via. Prezzo base € 682.856,00 (offerta minima € 512.142,00). Data inizio operazioni di vendita: 14/07/2026 ore 11:30. Professionista delegato alla vendita: Avv. Avv Riccardo Guerra - Email "riccardoguerra1569@gmail.com"; Tel. 0564/28693; Cell. 351/5683328. Custode Giudiziario: Avv. Avv Riccardo Guerra - Email "riccardoguerra1569@gmail.com"; Tel. 0564/28693; Cell. 351/5683328. Rif. Tribunale di Grosseto - Esecuzione immobiliare post legge 80 n. 7/2020

Superficie 1196,31 mq
Vani
Bagni
Piano

Tipologia di vendita Giudiziaria
Modalità di vendita Asincrona telematica
Termine presentazione offerte 01/01/1900 ore 00:00
Data e ora inizio gara 14/07/2026 ore 11:30
Codice ID astegiudiziarie.it 4249975
1196,31
€ 682.856

Ti interessa questa vendita?

north_east

Clicca qui per essere indirizzato alla scheda sul sito di provenienza

Bene di astegiudiziarie.it