highlight_off
Riferimento annuncio 316329 info

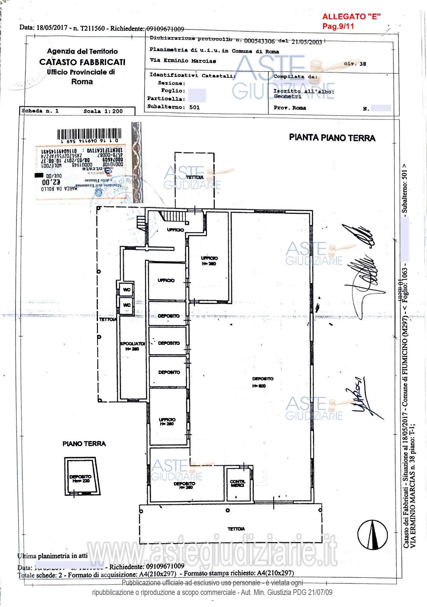
Fabbricato commerciale Via Erminio Marcias, 38, 00054 Fiumicino (RM)

5298,00
€ 1.100.000
Vendita all'asta Senza incanto, con gara telematica asincrona - LOTTO 0: Lotto Unico, composto di un fabbricato ad uso commerciale, posto su due piani con locale deposito esterno, posto al n. 38 della via Erminio Marcias in Fiumicino (RM) e comprensivo di terreni pertinenziali. Esso è realizzato con struttura portante in acciaio, con porzioni di tamponature in muratura ordinaria e pannelli in cartongesso, con copertura in metallo comprensiva di scossaline; le finiture esterne sono in parte con intonaco al civile e tinteggiatura con silicati e porzioni a tempera. Prezzo base € 1.100.000,00 (offerta minima € 825.000,00). Data inizio operazioni di vendita: 15/12/2025 ore 16:00. Giudice Francesco Vigorito. Professionista delegato alla vendita Dott. Riccardo Maria Vianelli - Email "aste@studiormvianelli.it"; Tel. 0766580763. Custode Giudiziario Dott. Riccardo Maria Vianelli - Email "aste@studiormvianelli.it"; Tel. 0766580763. Rif. Tribunale di Civitavecchia - Espropriazione immobiliare (cartabia) n. 199/2024

Superficie 5298,00 mq
Vani
Bagni
Piano

Tipologia di vendita Giudiziaria
Modalità di vendita Asincrona telematica
Termine presentazione offerte 01/01/1900 ore 00:00
Data e ora inizio gara 15/12/2025 ore 16:00
Codice ID astegiudiziarie.it 4336483
5298,00
€ 1.100.000

Ti interessa questa vendita?

north_east

Clicca qui per essere indirizzato alla scheda sul sito di provenienza

Bene di astegiudiziarie.it