highlight_off
Riferimento annuncio 326098 info

Fabbricato commerciale Localita' Valleratte snc, 01020 Civitella d'Agliano (VT)

18000,00
€ 342.675
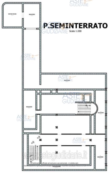
Vendita all'asta Senza incanto, con gara telematica asincrona - LOTTO 1: Diritti di piena proprietà su unità immobiliare in corso di costruzione allo stato grezzo con relativa corte, e piscina uso commerciale con destinazione ristorante e annessi locali di servizio dell. Prezzo base € 342.675,00 (offerta minima € 257.006,25). Data inizio operazioni di vendita: 01/07/2026 ore 11:20. Giudice: Dott. Federico Bonato. Professionista delegato alla vendita: Dott. Giovanni Arriga - Email "dott.arriga@gmail.com". Custode Giudiziario: Dott. Dott Giovanni Arriga - Email "dott.arriga@gmail.com"; Tel. 0761/270186. Rif. Tribunale di Viterbo - Esecuzione immobiliare post legge 80 n. 128/2021

Superficie 18000,00 mq
Vani
Bagni
Piano

Tipologia di vendita Giudiziaria
Modalità di vendita Asincrona telematica
Termine presentazione offerte 01/01/1900 ore 00:00
Data e ora inizio gara 01/07/2026 ore 11:20
Codice ID astegiudiziarie.it 4344330
18000,00
€ 342.675

Ti interessa questa vendita?

north_east

Clicca qui per essere indirizzato alla scheda sul sito di provenienza

Bene di astegiudiziarie.it