highlight_off
Riferimento annuncio 308795 info

Fabbricato commerciale Via Generale Carlo Alberto Dalla Chiesa, 25032 Chiari BS, Italia, 25032 Chiari (BS)

€ 207.360
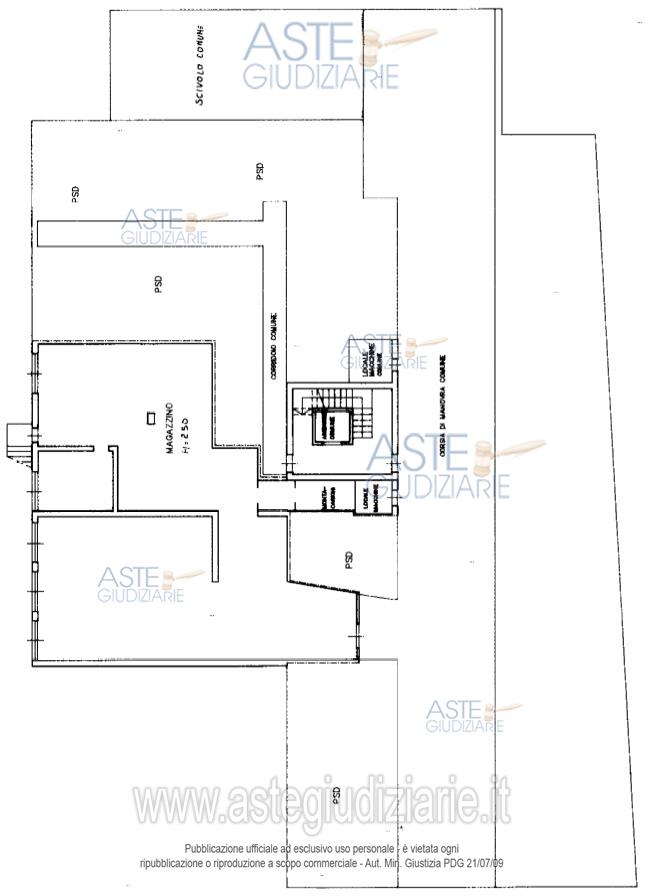
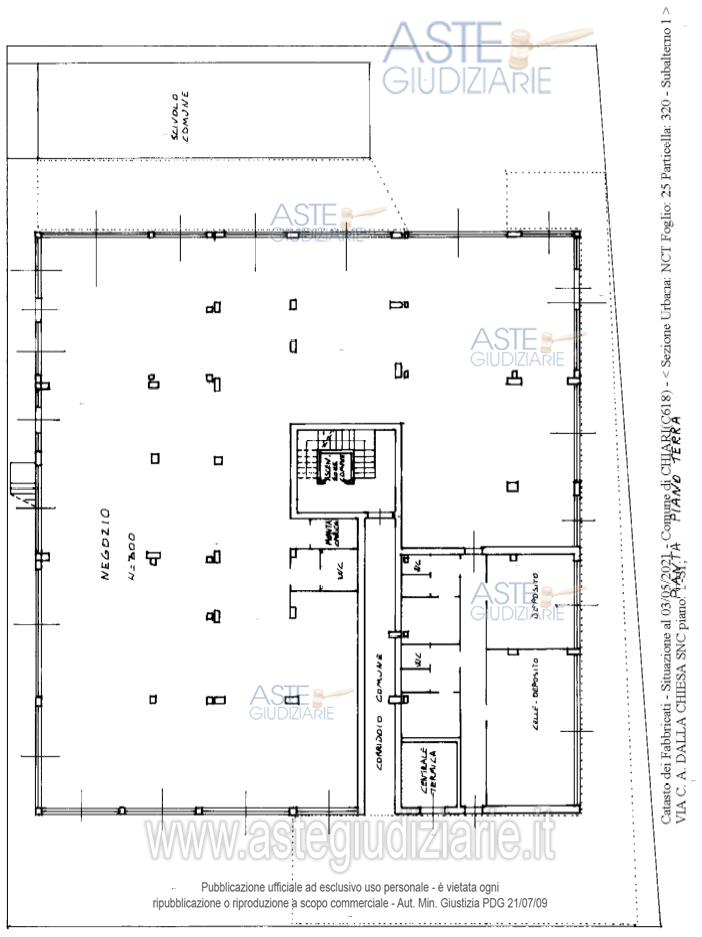
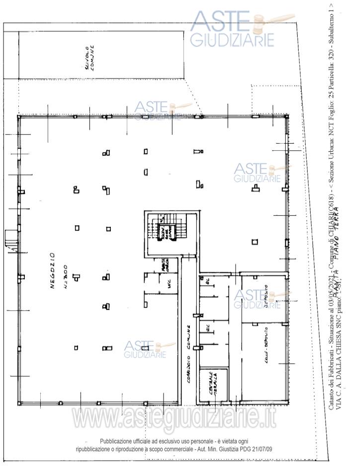
Vendita all'asta Competitiva, con gara telematica asincrona - LOTTO 7: LOTTO 7Piena proprietà.In Comune di CHIARI (BS) – Via C.A. Dalla Chiesa.Trattasi di punto vendita al dettaglio, oltre ai beni mobili ivi presenti (attrezzature, scaffalature e mobili d’arredo). Prezzo base € 207.360,00 (offerta minima € 165.888,00). Data inizio operazioni di vendita: 25/03/2026 ore 12:00. Professionista delegato alla vendita Not. Francesco Ambrosini - Email "credenzialiaste@gmail.com". Curatore Dott. Valerio Galeri. Rif. Tribunale di Brescia - Fallimentare (nuovo rito) n. 5/2023

Tipologia di vendita Giudiziaria
Modalità di vendita Asincrona telematica
Termine presentazione domande 01/01/1900 ore 00:00
Data e ora inizio gara 25/03/2026 ore 12:00
Codice ID astegiudiziarie.it 4330655
€ 207.360

Ti interessa questa vendita?

north_east

Clicca qui per essere indirizzato alla scheda sul sito di provenienza

Bene di astegiudiziarie.it