highlight_off
Riferimento annuncio 249120 info

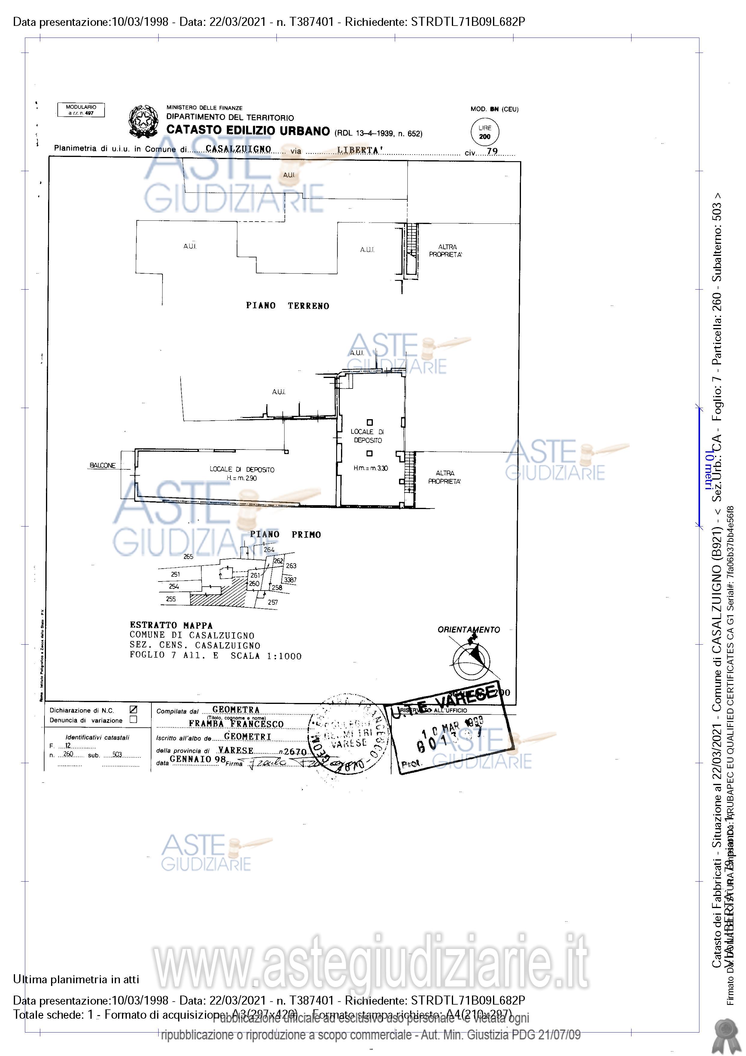
Fabbricato commerciale Via libertà 79, 21030 Casalzuigno (VA)

348,00
€ 56.689
Vendita all'asta Senza incanto, con gara telematica sincrona mista - LOTTO 1: unità commerciale adibita a ristorante oltre a area pertinenziale. Prezzo base € 56.688,64 (offerta minima € 42.516,48). Data vendita 22/01/2026 ore 16:00. Giudice Flaminia Dangelo. Professionista delegato alla vendita Avv. Sandra Leotta - Email "sandraleotta85@yahoo.it". Custode Giudiziario Givg Srl - Email "immobiliari.va@givg.it"; Tel. 0332335510. Rif. Tribunale di Varese - Esecuzione immobiliare post legge 80 n. 75/2020

Superficie 348,00 mq
Vani
Bagni
Piano

Tipologia di vendita Giudiziaria
Modalità di vendita Sincrona mista
Termine presentazione offerte 01/01/1900 ore 00:00
Data e ora inizio gara 22/01/2026 ore 16:00
Codice ID astegiudiziarie.it 4283907
348,00
€ 56.689

Ti interessa questa vendita?

north_east

Clicca qui per essere indirizzato alla scheda sul sito di provenienza

Bene di astegiudiziarie.it