highlight_off
Riferimento annuncio 310537 info

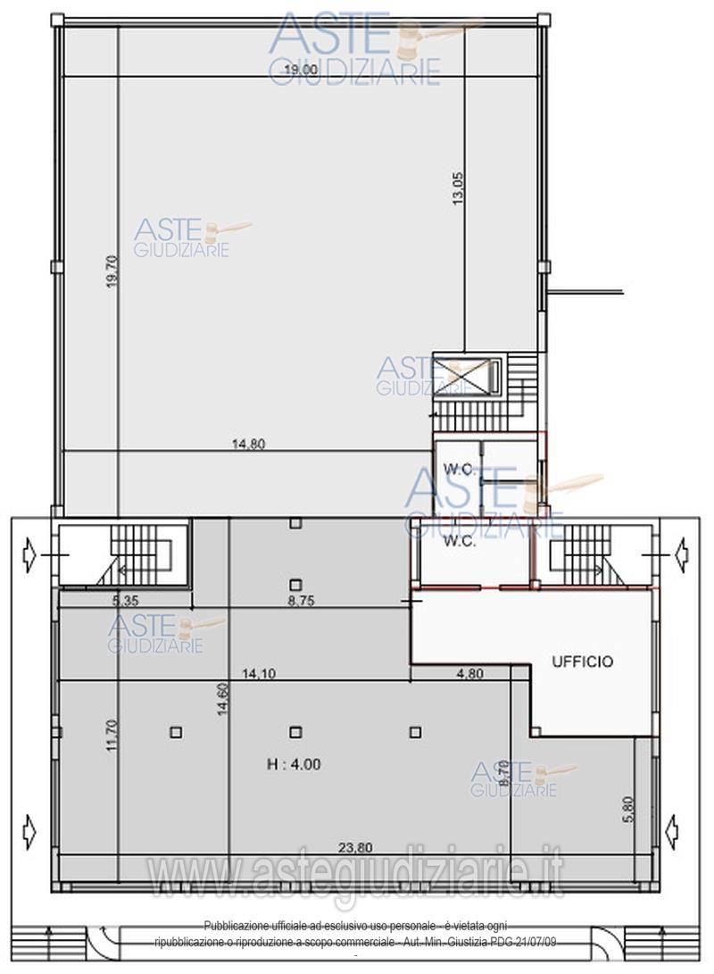
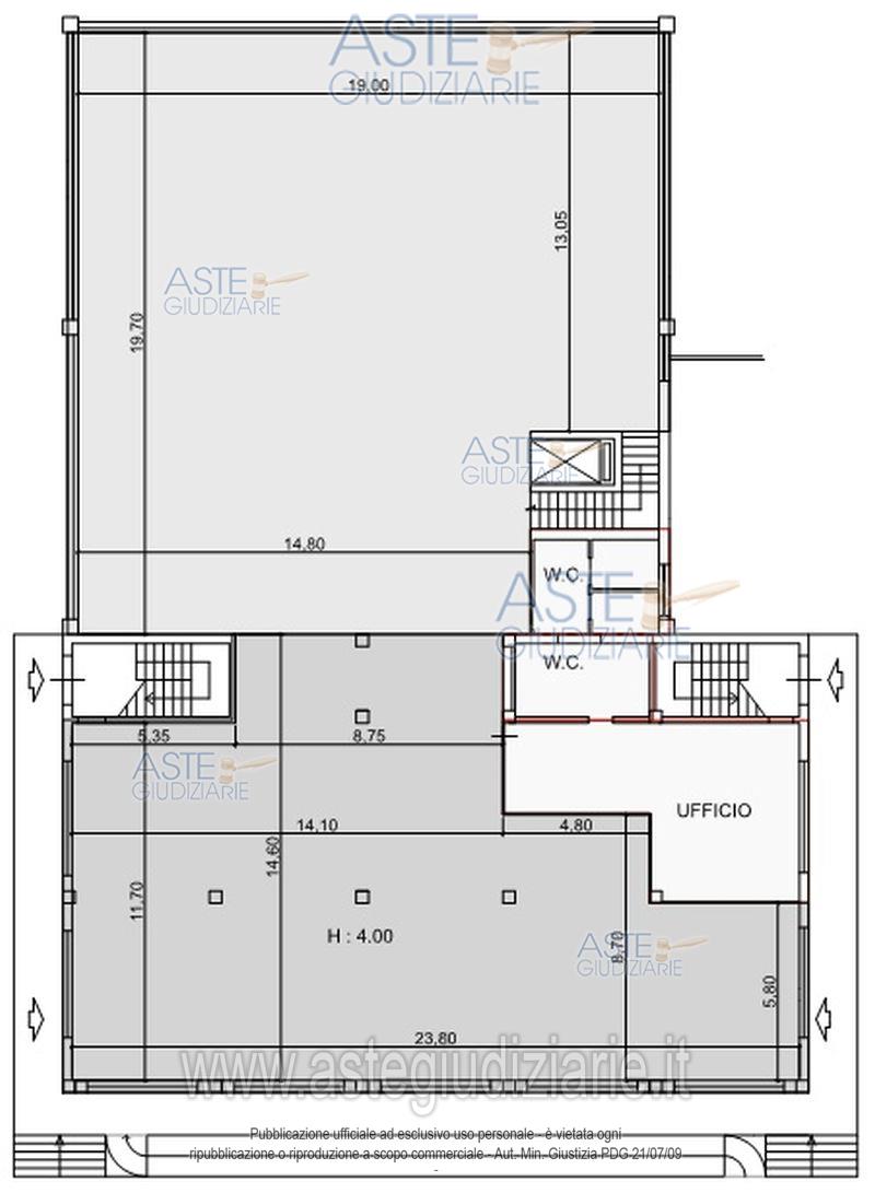
Fabbricato commerciale Via Pierino Testore, 14053 Canelli AT, Italia, 14053 Canelli (AT)

€ 1.287.000
Vendita all'asta Senza incanto, con gara telematica asincrona - LOTTO UNICO: I beni pignorati consistono in una serie di fabbricati suddivisi in residenziale, commerciale e pro-duttivo e di terreni di qualità differenti dal tipo seminativo al bosco ceduo. Tutte le proprietà si trovano nel Comune di Canelli e sono stati identificati dal CTU tramite visure effettuate presso il Nuovo Catasto Urbano e Terreni di Canelli. Prezzo base € 1.287.000,00 (offerta minima € 965.250,00). Data inizio operazioni di vendita: 15/10/2025 ore 15:00. Professionista delegato alla vendita Avv. Dario Olivero - Email "avv.dario.olivero@gmail.com". Custode Giudiziario Ifir Piemonte Ivg Srl - Email "richiestevisite.asti@ivgpiemonte.it"; Cell. 3664299971. Rif. Tribunale di Asti - Esecuzione immobiliare post legge 80 n. 23/2016

Tipologia di vendita Giudiziaria
Modalità di vendita Asincrona telematica
Termine presentazione offerte 14/10/2025 ore 12:00
Data e ora inizio gara 15/10/2025 ore 15:00
Codice ID astegiudiziarie.it 4332240
€ 1.287.000

Ti interessa questa vendita?

north_east

Clicca qui per essere indirizzato alla scheda sul sito di provenienza

Bene di astegiudiziarie.it