highlight_off
Riferimento annuncio 313563 info

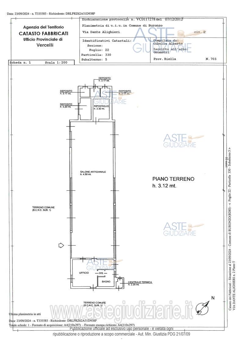
Fabbricato commerciale Via Dante Alighieri n. 2, 13040 Buronzo (VC)

205,00
€ 82.943
Vendita all'asta Senza incanto, con gara telematica asincrona - LOTTO 1: Capannone ad uso artigianale adibito a deposito materiale e attrezzature ed in parte ad autorimessa. Prezzo base € 82.943,00 (offerta minima € 62.207,25). Data inizio operazioni di vendita: 06/11/2025 ore 10:00. Professionista delegato alla vendita Not. Paola Ponzana. Custode Giudiziario Not. Paola Ponzana - Email "pponzana@notariato.it"; Tel. 0163290013. Rif. Tribunale di Vercelli - Espropriazione immobiliare (cartabia) n. 110/2024

Superficie 205,00 mq
Vani
Bagni
Piano

Tipologia di vendita Giudiziaria
Modalità di vendita Asincrona telematica
Termine presentazione offerte 05/11/2025 ore 12:00
Data e ora inizio gara 06/11/2025 ore 10:00
Codice ID astegiudiziarie.it 4334878
205,00
€ 82.943

Ti interessa questa vendita?

north_east

Clicca qui per essere indirizzato alla scheda sul sito di provenienza

Bene di astegiudiziarie.it