highlight_off
Riferimento annuncio 311781 info

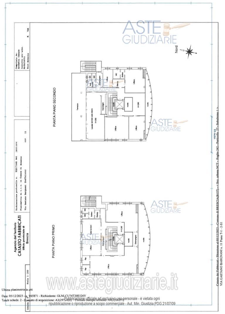
Fabbricato commerciale Via Gaetano Bargnani, 11, 25100 Brescia (BS)

€ 3.118.500
Vendita all'asta Senza incanto, con gara telematica asincrona - LOTTO UNICO: Piena proprietà di fabbricato a destinazione d'uso direzionale disposto su quattro livelli (piano interrato, piano terra, piano primo e piano secondo) collegati tra loro da ascensore e vano scale interno composto da uffici direzionali, laboratori, magazzini e autorimessa con corte esclusiva e cabina elettrica di alimentazione. Prezzo base € 3.118.500,00 (offerta minima € 2.338.875,00). Data inizio operazioni di vendita: 30/01/2026 ore 12:00. Professionista delegato alla vendita Avv. Giulia Gamba - Email "giulia.gamba88@gmail.com"; Tel. 0302424284. Custode Giudiziario Avv. Giulia Gamba - Email "giulia.gamba88@gmail.com"; Tel. 0302424284. Rif. Tribunale di Brescia - Espropriazione immobiliare (cartabia) n. 435/2023

Tipologia di vendita Giudiziaria
Modalità di vendita Asincrona telematica
Termine presentazione offerte 01/01/1900 ore 00:00
Data e ora inizio gara 30/01/2026 ore 12:00
Codice ID astegiudiziarie.it 4333410
€ 3.118.500

Ti interessa questa vendita?

north_east

Clicca qui per essere indirizzato alla scheda sul sito di provenienza

Bene di astegiudiziarie.it