highlight_off
Riferimento annuncio 293288 info

Fabbricato commerciale Via Spineta, 48, 84091 Battipaglia SA, Italia, 84091 Battipaglia (SA)

959,00
€ 603.000
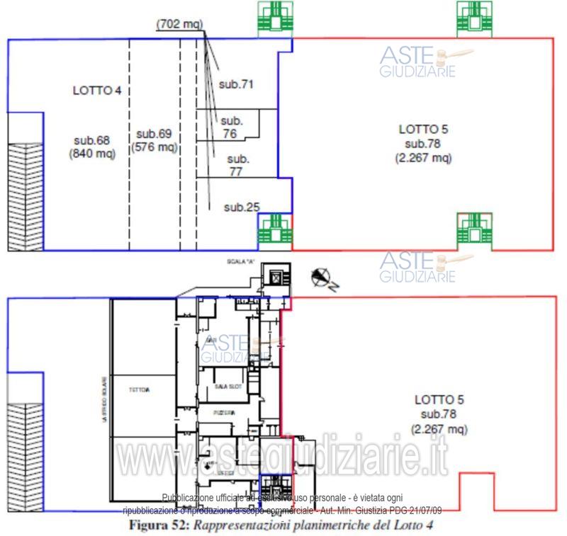
Vendita all'asta Senza incanto, con gara telematica asincrona - LOTTO 4: Lotto 4. Locali commerciali di dimensioni più contenute ed ubicati nella zona Sud-Est del piano terra del complesso edilizio in esame, con accessi esterni da area comune. Prezzo base € 603.000,00 (offerta minima € 453.000,00). Data inizio operazioni di vendita: 23/07/2026 ore 17:00. Giudice Dott. Enza Faracchio. Professionista delegato alla vendita Dott. Vincenzo Piccolo. Custode Giudiziario Dott. Vincenzo Piccolo - Email "v.piccolo@commercialistisalerno.it"; Tel. 0899307374. Rif. Tribunale di Salerno - Esecuzione immobiliare post legge 80 n. 262/2015

Superficie 959,00 mq
Vani
Bagni
Piano

Tipologia di vendita Giudiziaria
Modalità di vendita Asincrona telematica
Termine presentazione offerte 22/07/2026 ore 12:00
Data e ora inizio gara 23/07/2026 ore 17:00
Codice ID astegiudiziarie.it 4318662
959,00
€ 603.000

Ti interessa questa vendita?

north_east

Clicca qui per essere indirizzato alla scheda sul sito di provenienza

Bene di astegiudiziarie.it