highlight_off
Riferimento annuncio 139814 info

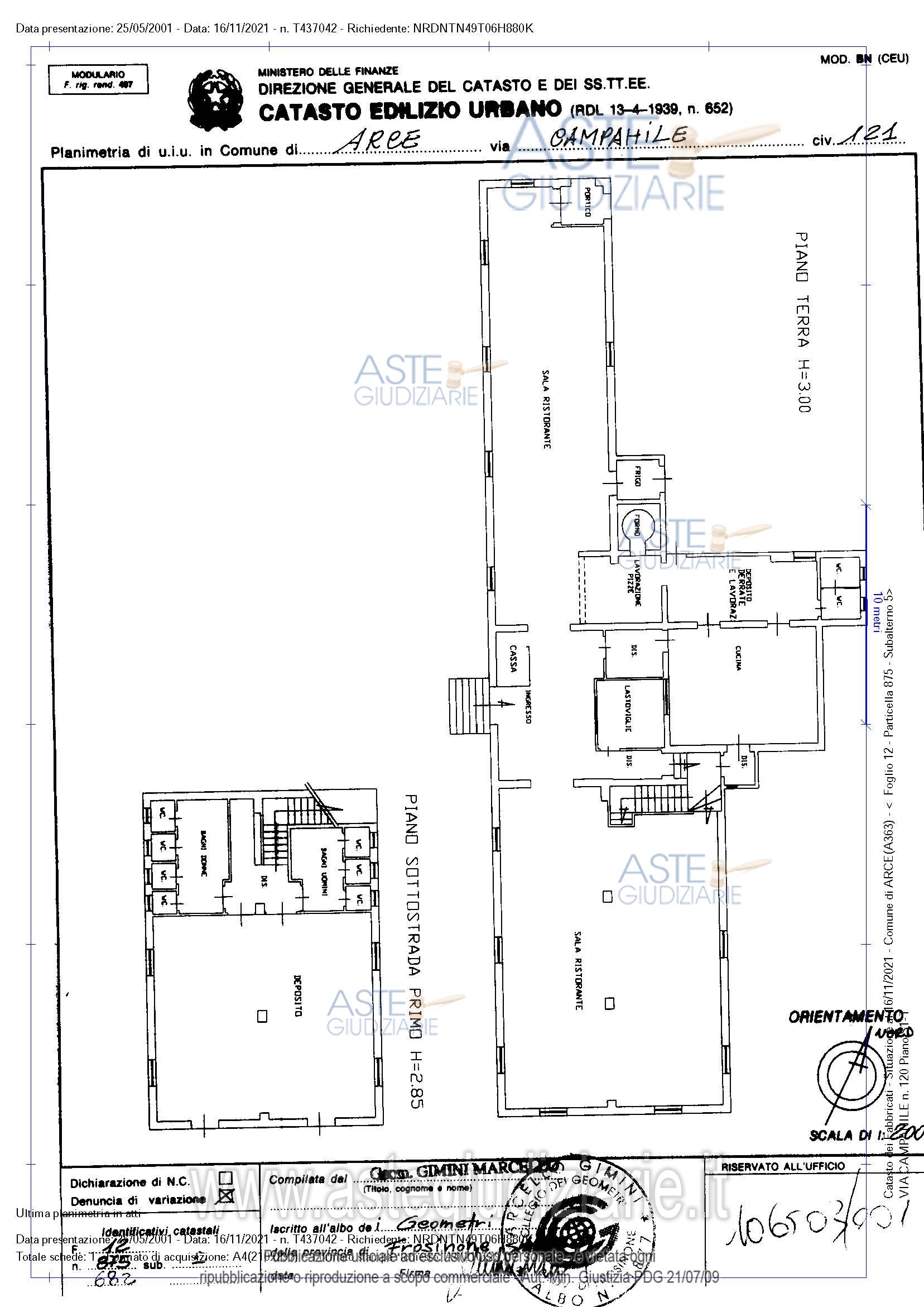
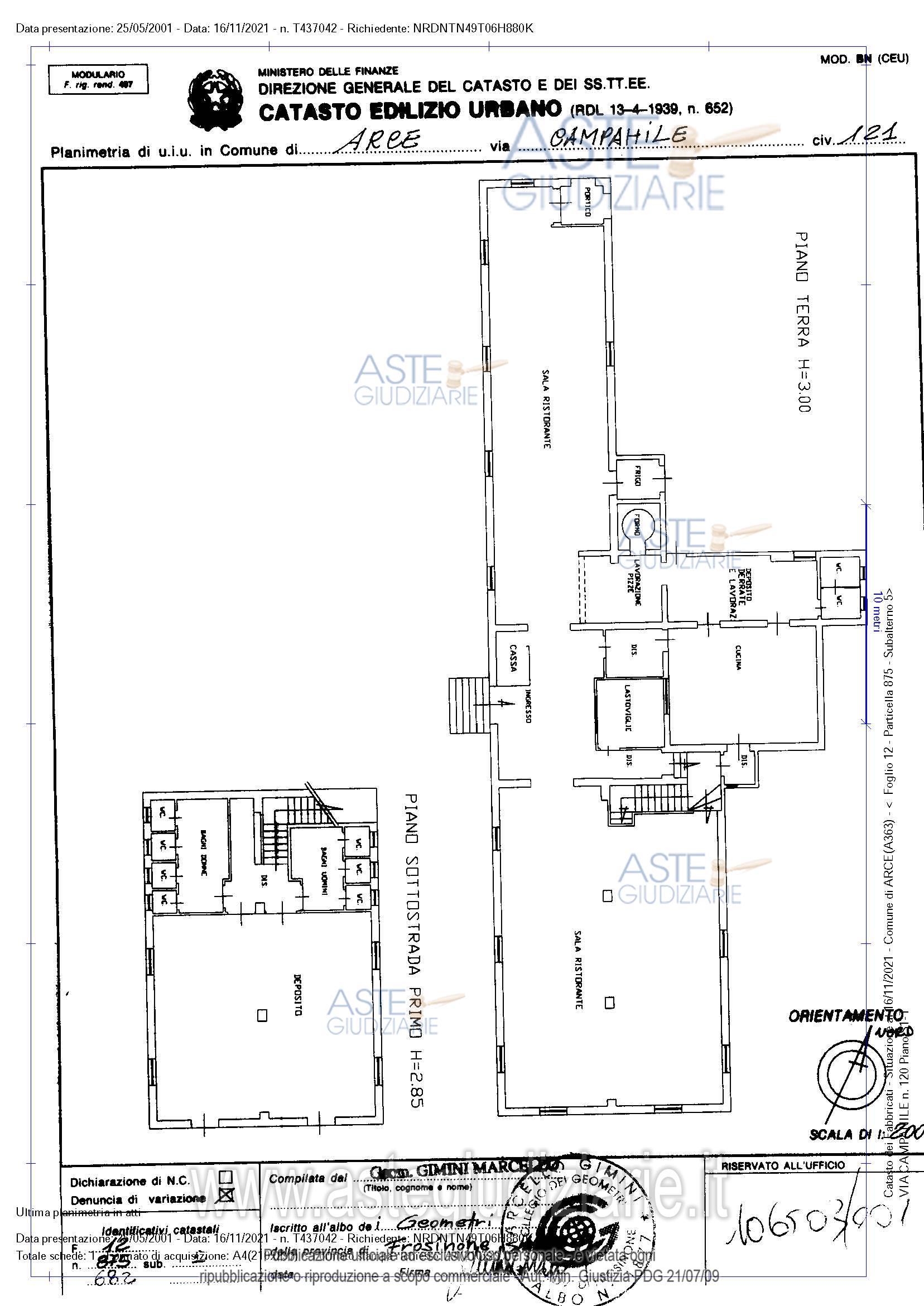
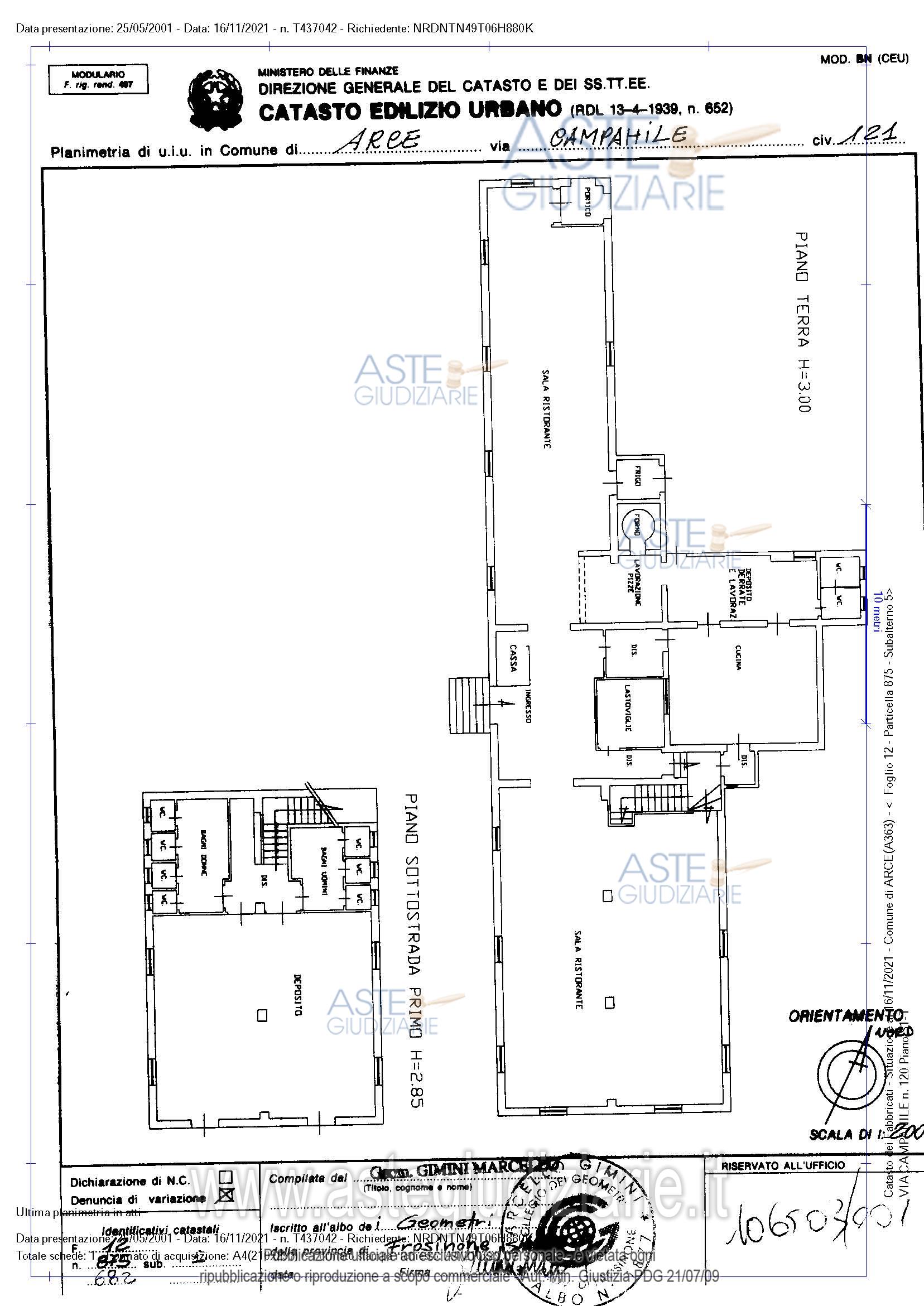
Fabbricato commerciale Via Campanile 120, 03032 Arce (FR)

€ 40.000
Vendita all'asta Senza incanto, con gara telematica asincrona - LOTTO UNICO: Locale ristorante ubicato a Arce (FR). Prezzo base € 40.000,00 (offerta minima € 30.000,00). Data inizio operazioni di vendita: 18/12/2025 ore 16:00. Professionista delegato alla vendita Avv. Elisa Castellucci - Email "castellucci.e@libero.it"; Cell. 3476977057. Custode Giudiziario Avv. Elisa Castellucci - Email "castellucci.e@libero.it"; Cell. 3476977057. Rif. Tribunale di Cassino - Esecuzione immobiliare post legge 80 n. 87/2021

Tipologia di vendita Giudiziaria
Modalità di vendita Asincrona telematica
Termine presentazione offerte 01/01/1900 ore 00:00
Data e ora inizio gara 18/12/2025 ore 16:00
Codice ID astegiudiziarie.it 4246067
€ 40.000

Ti interessa questa vendita?

north_east

Clicca qui per essere indirizzato alla scheda sul sito di provenienza

Bene di astegiudiziarie.it