highlight_off
Riferimento annuncio 264200 info

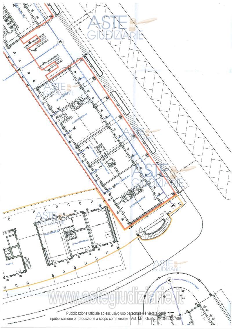
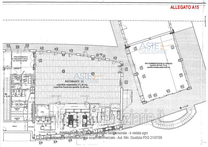
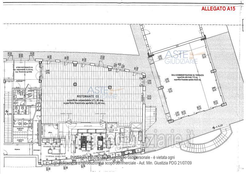
Fabbricato commerciale Via MASCINO 1, 60100 Ancona (AN)

729,00
€ 260.362
Vendita all'asta Senza incanto, con gara telematica asincrona - LOTTO 1: Individuato in perizia come Lotto A + G1. 1/1 Diritti di proprietà superficiaria su locale commerciale, oggi adibito a ristorante. Il bene viene posto in vendita unitamente ai beni mobili costituiti da arredi ed attrezzature. Prezzo base € 260.362,07 (offerta minima € 260.362,07). Data inizio operazioni di vendita: 06/05/2026 ore 12:00. Giudice Dott. Maria Letizia Mantovani. Curatore Dott. Chiara Alessandrini. Rif. Tribunale di Ancona - Liquidazione giudiziale(cci) n. 36/2023

Superficie 729,00 mq
Vani
Bagni
Piano

Tipologia di vendita Giudiziaria
Modalità di vendita Asincrona telematica
Termine presentazione offerte 05/05/2026 ore 12:00
Data e ora inizio gara 06/05/2026 ore 12:00
Codice ID astegiudiziarie.it 4297832
729,00
€ 260.362

Ti interessa questa vendita?

north_east

Clicca qui per essere indirizzato alla scheda sul sito di provenienza

Bene di astegiudiziarie.it