Riferimento annuncio 318260
        
    
    Fabbricato commerciale Via 24 Maggio, 64011 Alba Adriatica TE, Italia, 64011 Alba Adriatica (TE)
                
                191,00
            
            
€ 178.916    
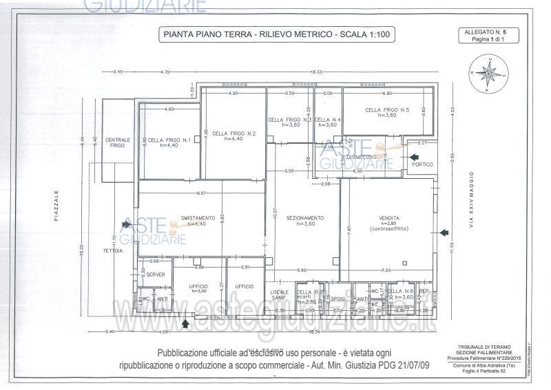
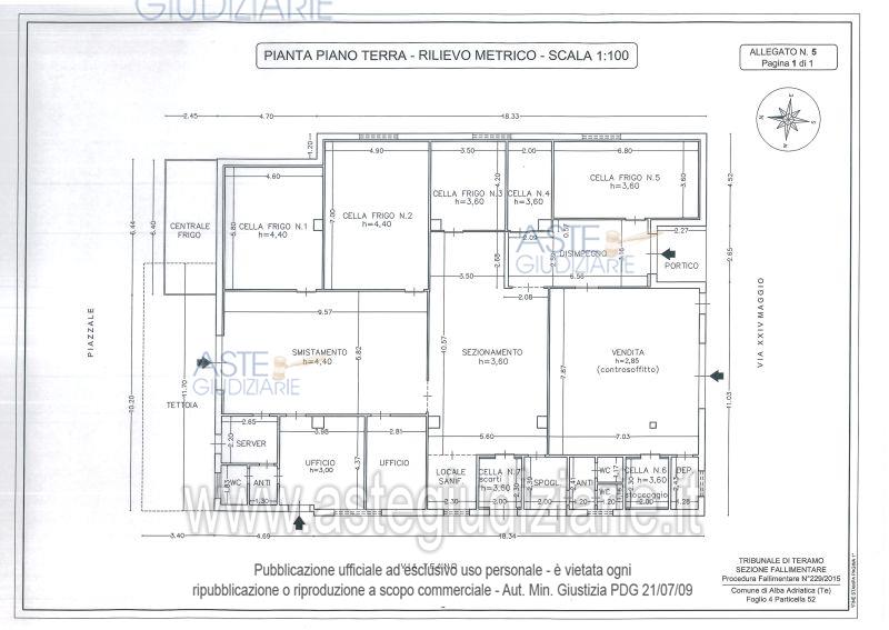
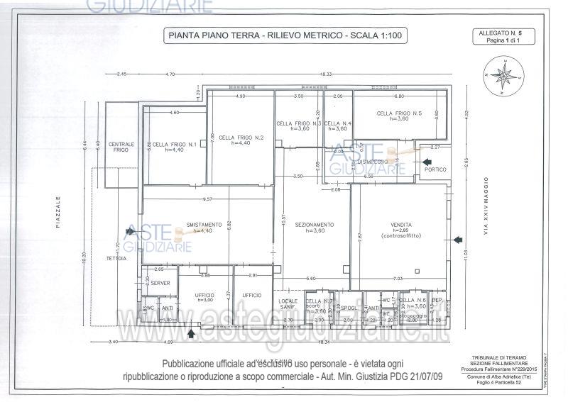
                Vendita all'asta Senza incanto, con gara telematica asincrona - LOTTO 1:  Immobile a destinazione commerciale che si sviluppa su un unico livello al piano terra, composto da un locale per la vendita prospiciente la Via XXIV Maggio, un locale per lo smistamento delle carni, un locale per il sezionamento delle carni, sette celle frigorifere di varie dimensioni, servizi igienici e spogliatoi per il personale, oltre a due uffici con relativo servizio igienico e un piccolo locale di servizio. Sul lato nord è presente un’area pertinenziale scoperta, come meglio specificato in perizia. Prezzo base € 178.916,00 (offerta minima € 178.916,00). Data inizio operazioni di vendita: 20/12/2025 ore 15:00. Curatore Avv. Lauro Tribuiani - Email "avv.laurotribuiani@alice.it"; Cell. 3482858510; Tel. 0861710281.  Rif. Tribunale di Teramo - Fallimentare (nuovo rito) n. 229/2015
            
   
| Superficie | 191,00 mq | 
|---|---|
| Vani | |
| Bagni | |
| Piano | 
| Tipologia di vendita | Giudiziaria | 
|---|---|
| Modalità di vendita | Asincrona telematica | 
| Termine presentazione offerte | 19/12/2025 ore 22:00 | 
| Data e ora inizio gara | 20/12/2025 ore 15:00 | 
 
                         
                         
                         
                         
                         
                         
                         
                         
                         
                         
                         
                         
                         
                         
                         
                         
                         
                         
                         
                         
                        