highlight_off
Riferimento annuncio 291841 info

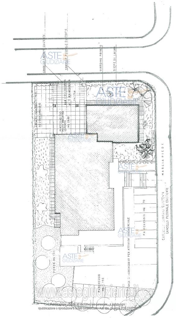
Fabbricato commerciale Via G.B. Moroni 26, 35031 Abano Terme (PD)

280,00
€ 274.000
Vendita all'asta Senza incanto, con gara telematica sincrona - LOTTO 1: Unità commerciale di circa mq 274,00 di sup. comm., posta al piano terra sul lato sudest del compendio immobiliare di Via Moroni n. 26, alla quale si accede attraverso una scala ad uso esclusivo da. Prezzo base € 274.000,00 (offerta minima € 205.500,00). Data vendita 26/03/2026 ore 10:30. Giudice Dott. Paola Rossi. Professionista delegato alla vendita Avv. Silvia Lorenzon - Email "silvia.lorenzon@studiorlm.it". Custode Giudiziario Avv. Silvia Lorenzon - Email "silvia.lorenzon@studiorlm.it". Rif. Tribunale di Padova - Esecuzione immobiliare post legge 80 n. 363/2021

Superficie 280,00 mq
Vani
Bagni
Piano

Tipologia di vendita Giudiziaria
Modalità di vendita Sincrona telematica
Termine presentazione offerte 01/01/1900 ore 00:00
Data e ora inizio gara 26/03/2026 ore 10:30
Codice ID astegiudiziarie.it 4317532
280,00
€ 274.000

Ti interessa questa vendita?

north_east

Clicca qui per essere indirizzato alla scheda sul sito di provenienza

Bene di astegiudiziarie.it