highlight_off
Riferimento annuncio 302572 info

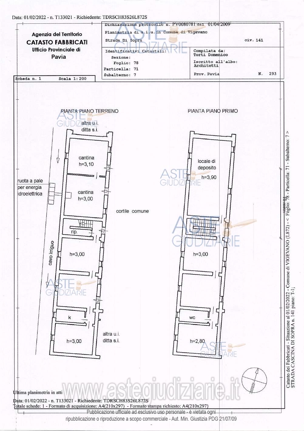
Fabbricato civile Frazione Sforzesca - Strada di Sopra 141, 27029 Vigevano (PV)

6662,00
0
€ 728.530
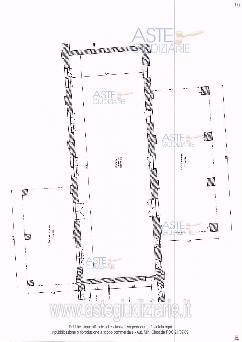
Vendita all'asta Senza incanto, con gara telematica asincrona - LOTTO UNICO: Cascinale tipico Lomellino noto come Cascina Cararola, risalente alla prima metà dell'800 che consisteva in origine in alloggi della proprietà, sistemazione lavoratori stagionali, stalle, magazzini fienili e ballatoi. Prezzo base € 728.530,00 (offerta minima € 546.400,00). Data inizio operazioni di vendita: 04/11/2025 ore 10:00. Giudice Dott. Alessandro Maiola. Professionista delegato alla vendita Avv. Paola Candiani. Custode Giudiziario Istituto Vendite Giudiziarie Di Vigevano - Email "immobiliarivigevano@ifir.it"; Tel. 0381691137. Rif. Tribunale di Pavia - Esecuzione immobiliare post legge 80 n. 169/2021

Superficie 6662,00 mq
Vani
Bagni
Piano 0

Tipologia di vendita Giudiziaria
Modalità di vendita Asincrona telematica
Termine presentazione offerte 01/01/1900 ore 00:00
Data e ora inizio gara 04/11/2025 ore 10:00
Codice ID astegiudiziarie.it 4266199
6662,00
0
€ 728.530

Ti interessa questa vendita?

north_east

Clicca qui per essere indirizzato alla scheda sul sito di provenienza

Bene di astegiudiziarie.it