Riferimento annuncio 314479
        
    
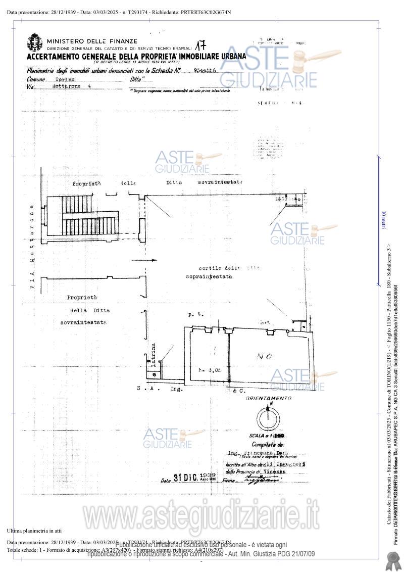
    Fabbricato civile via Mottarone , 4, 10100 Torino (TO)
                
                1,00
            
            
                
                29,66
            
            
                
                1
            
            
                
                0
            
        
€ 6.100    
                Vendita all'asta Senza incanto, con gara telematica asincrona - LOTTO 1:  Piena proprietà di due unità immobiliari tra loro adiacenti al piano terreno. Prezzo base € 6.100,00 (offerta minima € 4.575,00). Data inizio operazioni di vendita: 04/11/2025 ore 15:00. Giudice Dott. Paola Demaria. Professionista delegato alla vendita Avv. Paolo Casetta. Custode Giudiziario   - Torino Ifir Piemonte - Email "immobiliari@ivgpiemonte.it".  Rif. Tribunale di Torino - Esecuzione immobiliare n. 655/2024
            
   
| Superficie | 29,66 mq | 
|---|---|
| Vani | 1,00 | 
| Bagni | 1 | 
| Piano | 0 | 
| Tipologia di vendita | Giudiziaria | 
|---|---|
| Modalità di vendita | Asincrona telematica | 
| Termine presentazione offerte | 01/01/1900 ore 00:00 | 
| Data e ora inizio gara | 04/11/2025 ore 15:00 | 
 
                         
                         
                         
                         
                         
                         
                         
                        