Riferimento annuncio 312320
        
    
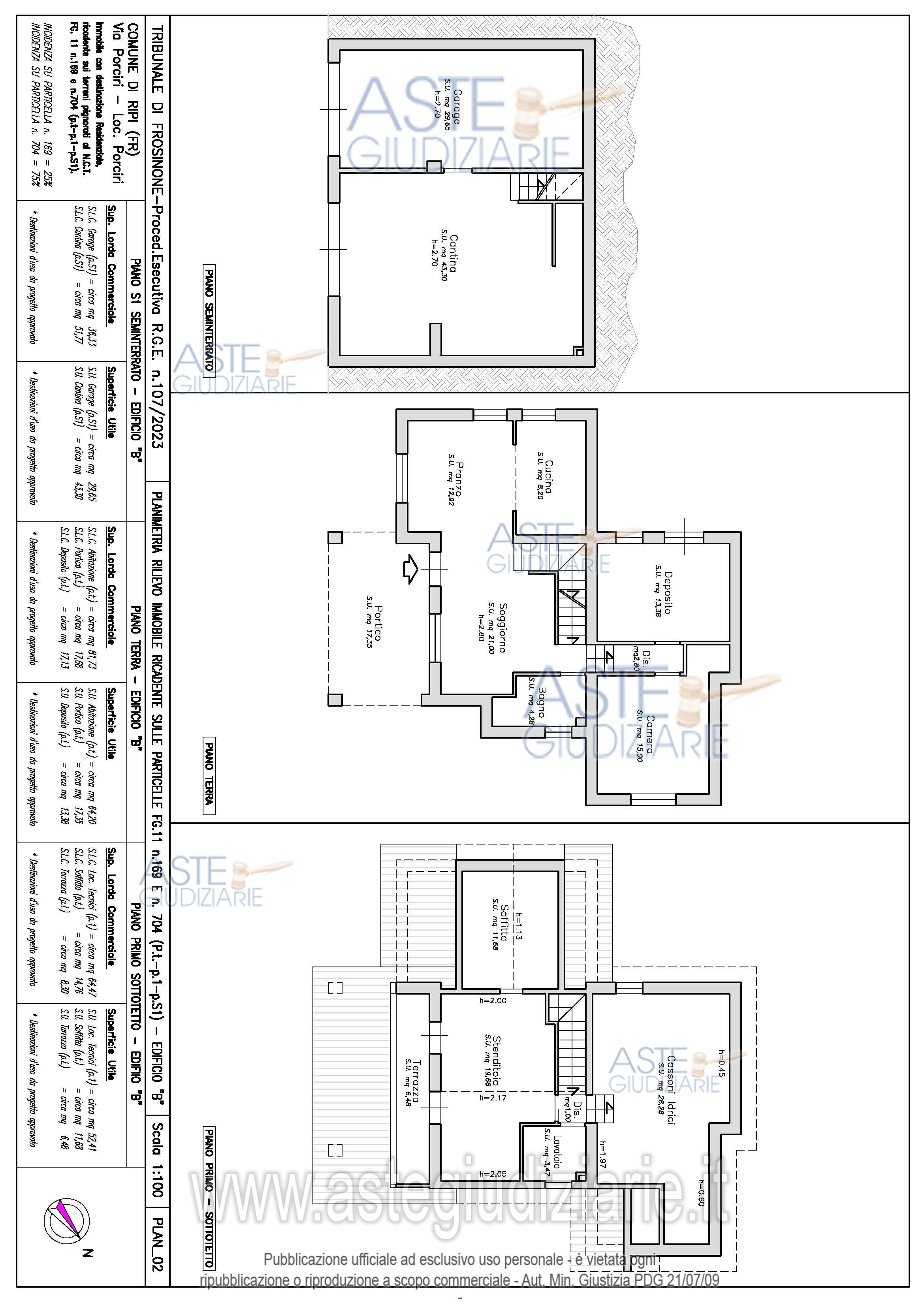
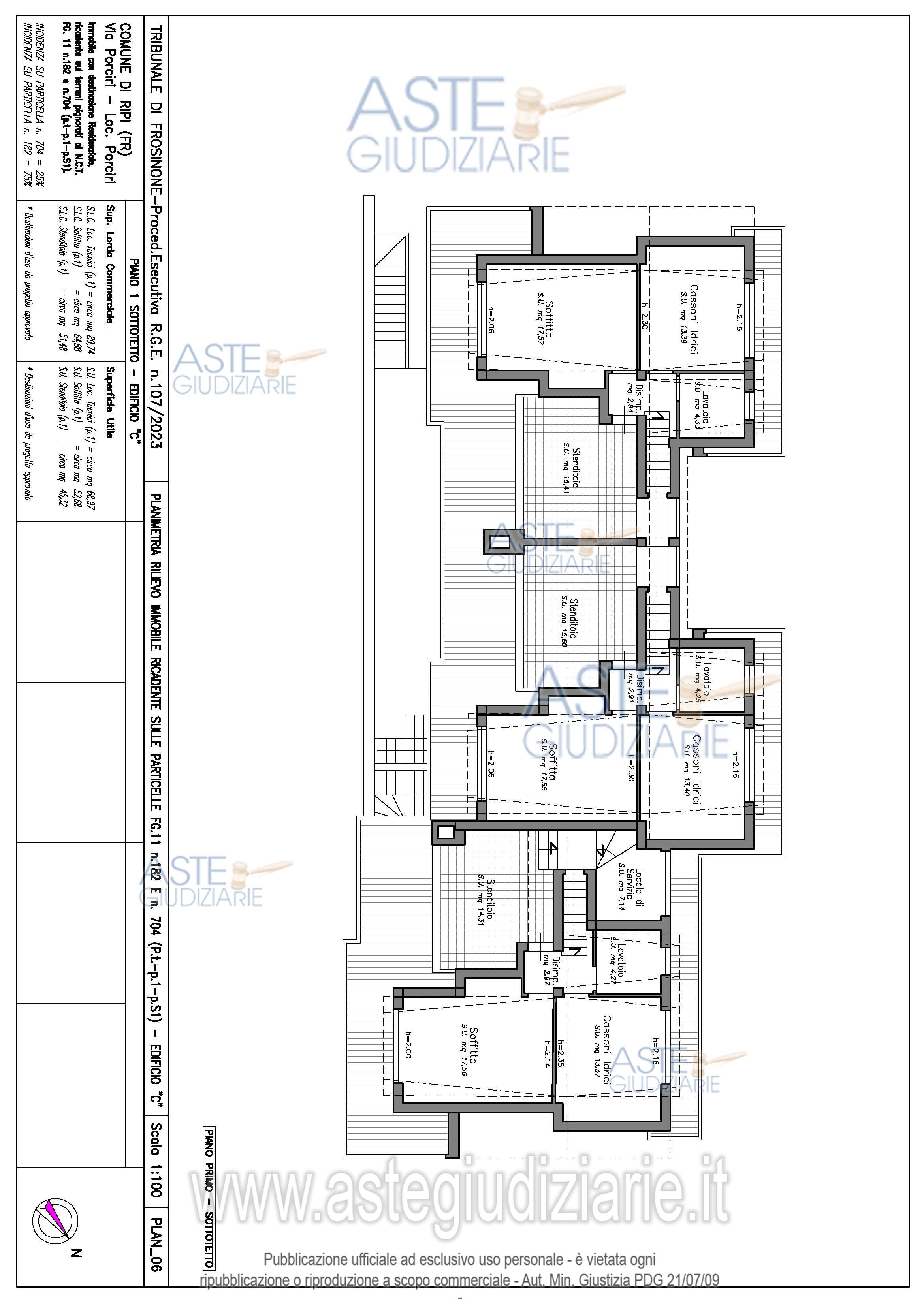
    Fabbricato civile Via Porciri, 03027 Ripi (FR)
                
                26489,00
            
            
                
                0
            
        
€ 397.534    
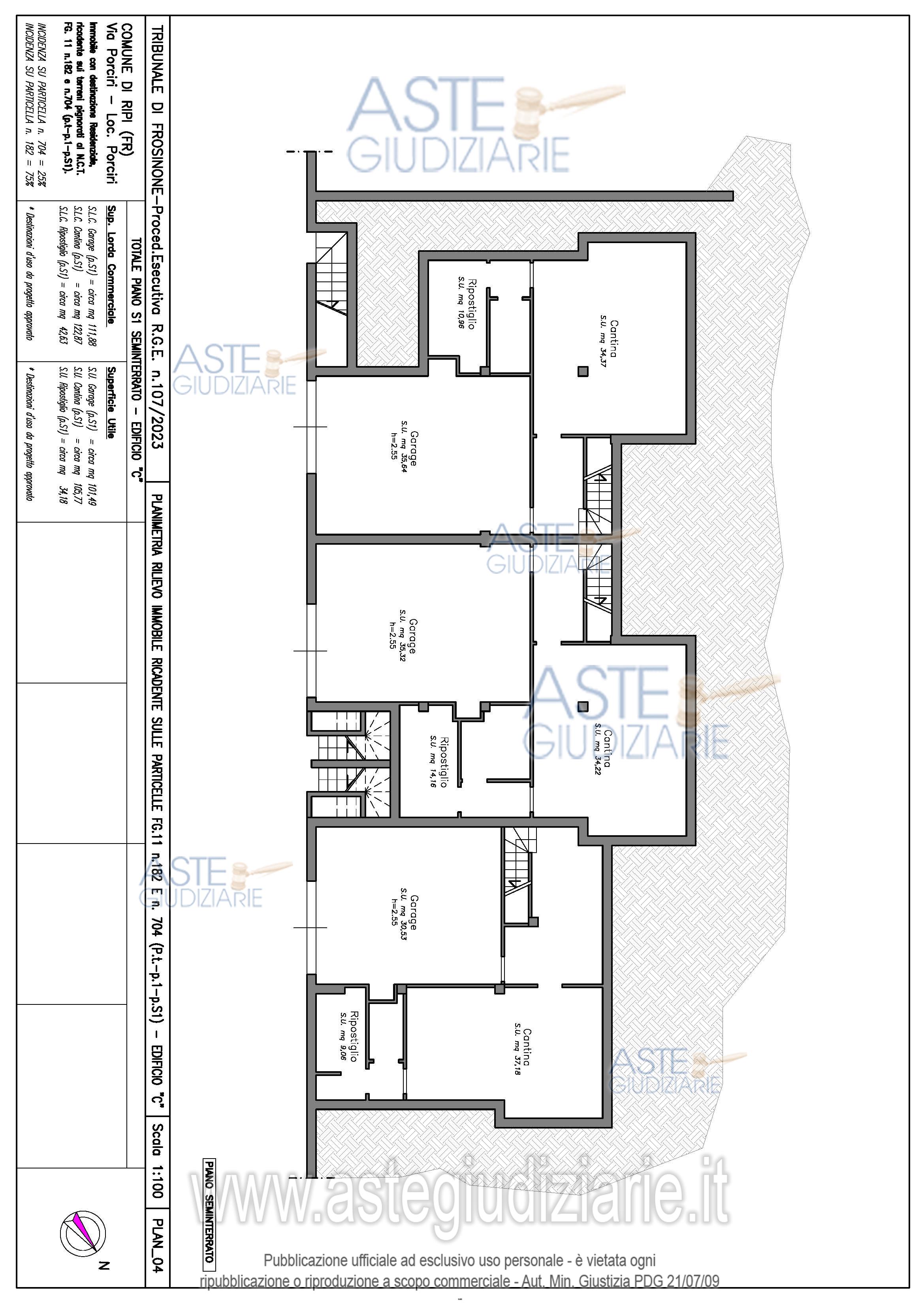
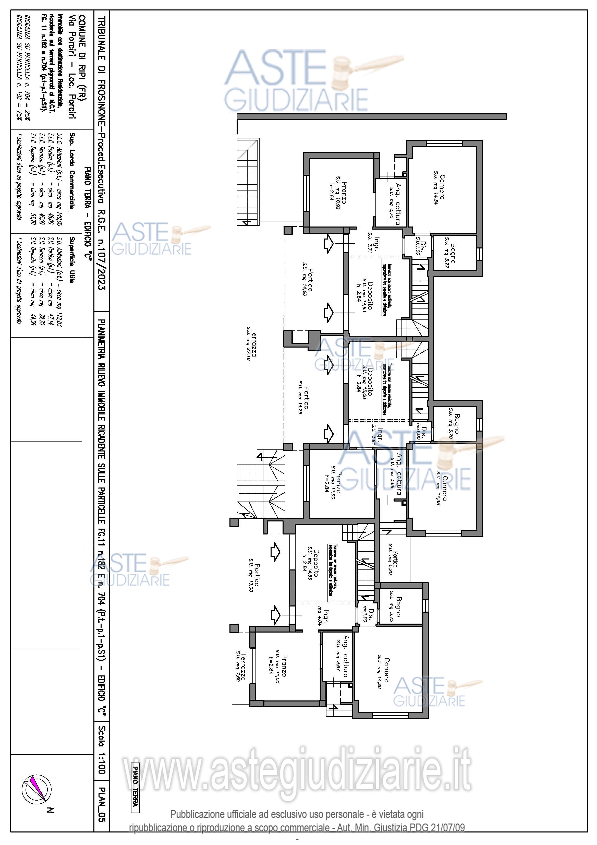
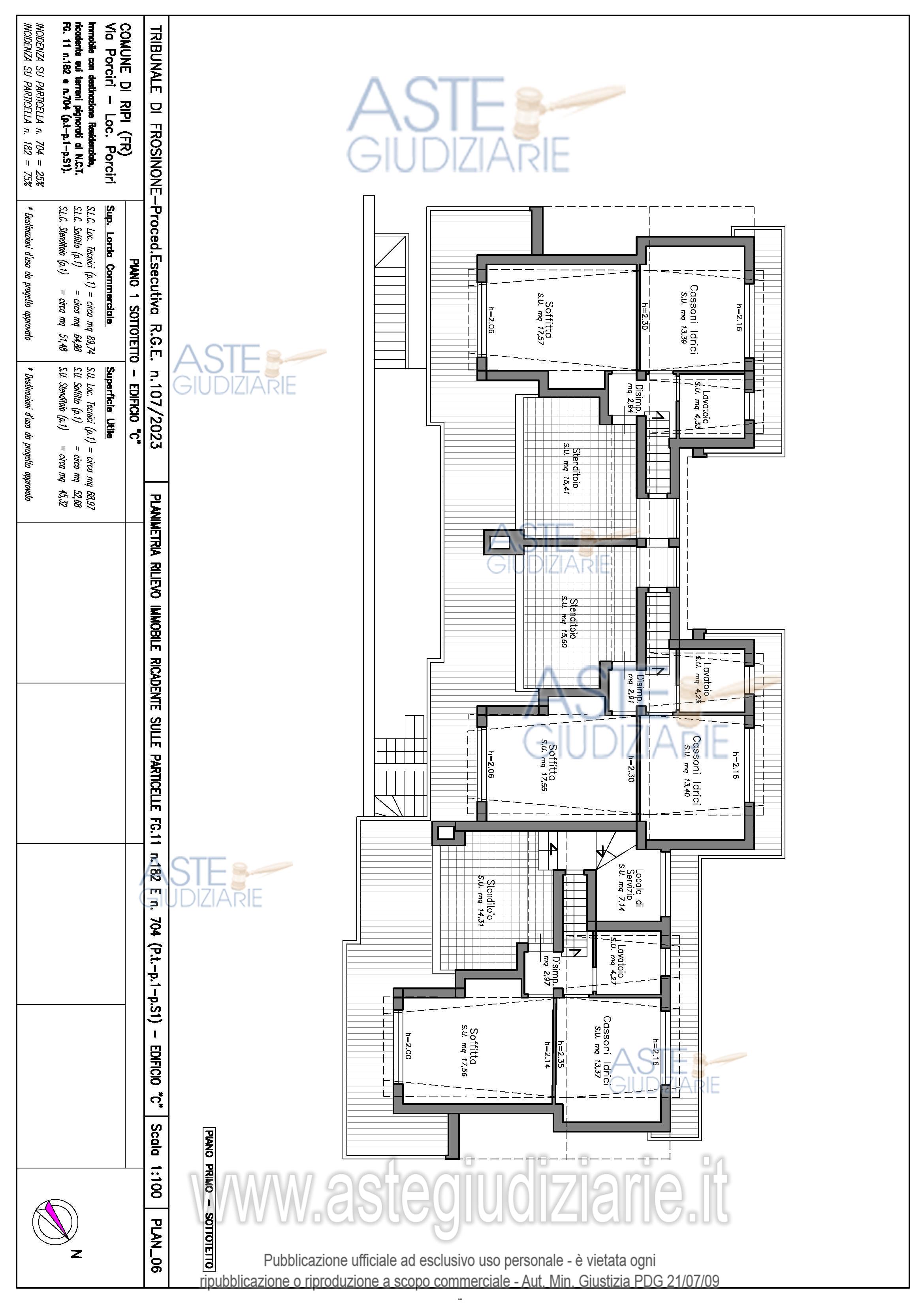
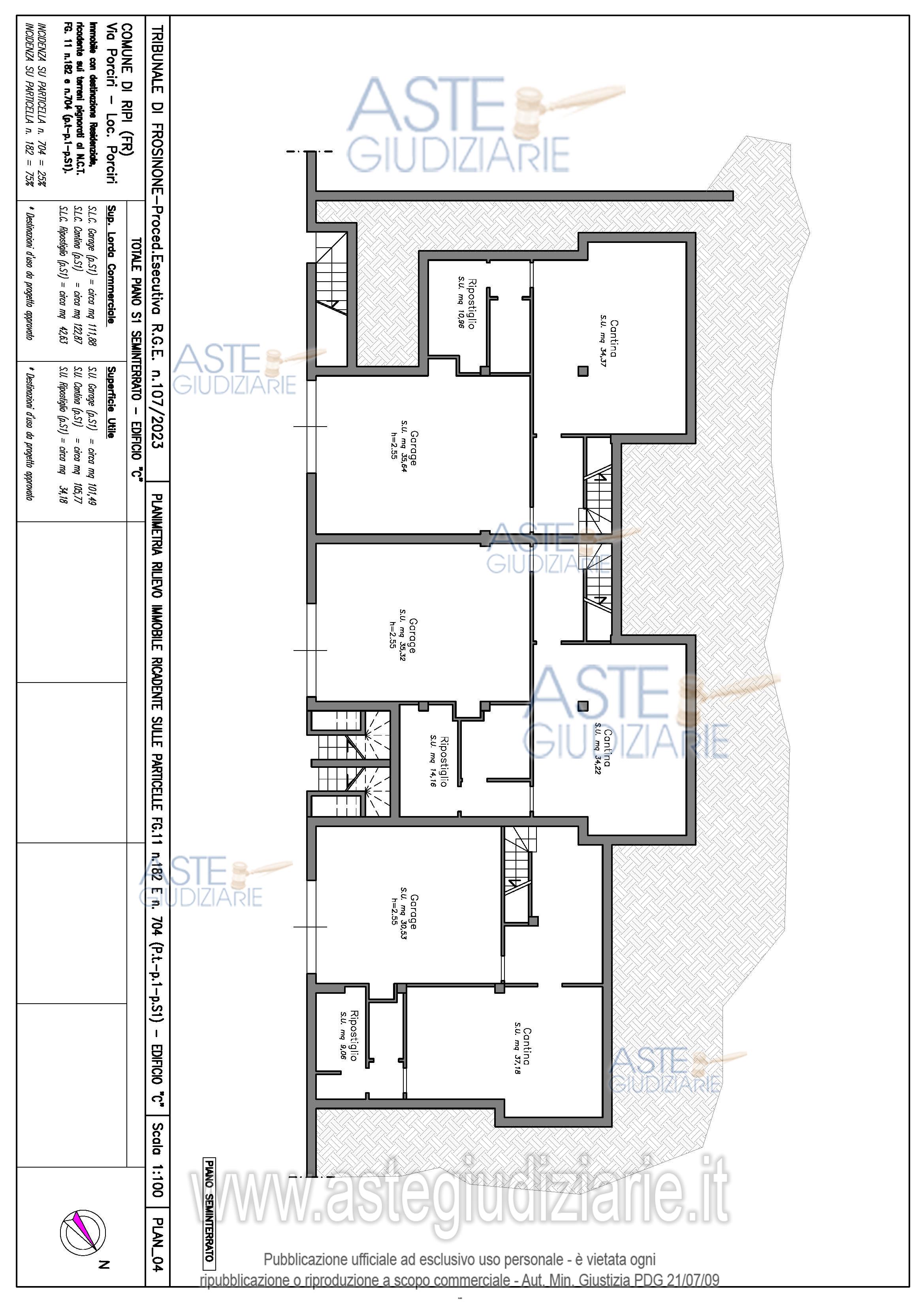
                Vendita in attesa dell'emissione del nuovo bando d'asta. LOTTO UNICO: Lotto composto da 3 fabbricati di civile abitazione in corso di costruzione (2 villini unifamiliari e un fabbricato che ingloba tre unità abitative) e da circostanti terreni. Ultimo prezzo base € 397.534,00 (offerta minima € 298.150,50). Giudice Andrea Petteruti. Professionista delegato alla vendita Avv. Allegra Sica - Email "avvallegrasica@aruba.it"; Cell. 3203549872. Custode Giudiziario  Avv. Allegra Sica - Email "avvallegrasica@aruba.it"; Cell. 3203549872.  Rif. Tribunale di Frosinone - Espropriazione immobiliare (cartabia) n. 107/2023
            
   
| Superficie | 26489,00 mq | 
|---|---|
| Vani | |
| Bagni | |
| Piano | 0 | 
| Tipologia di vendita | Giudiziaria | 
|---|---|
| Modalità di vendita | Asincrona telematica | 
| Termine presentazione offerte | 20/10/2025 ore 12:00 | 
| Data e ora inizio gara | 21/10/2025 ore 16:00 | 
 
                         
                         
                         
                         
                         
                         
                         
                         
                         
                         
                         
                         
                         
                         
                         
                         
                         
                         
                         
                         
                         
                         
                         
                         
                         
                         
                         
                         
                         
                         
                         
                         
                         
                         
                         
                         
                         
                         
                         
                         
                         
                         
                         
                         
                         
                         
                         
                         
                         
                         
                         
                         
                         
                         
                         
                         
                        