highlight_off
Riferimento annuncio 265346 info

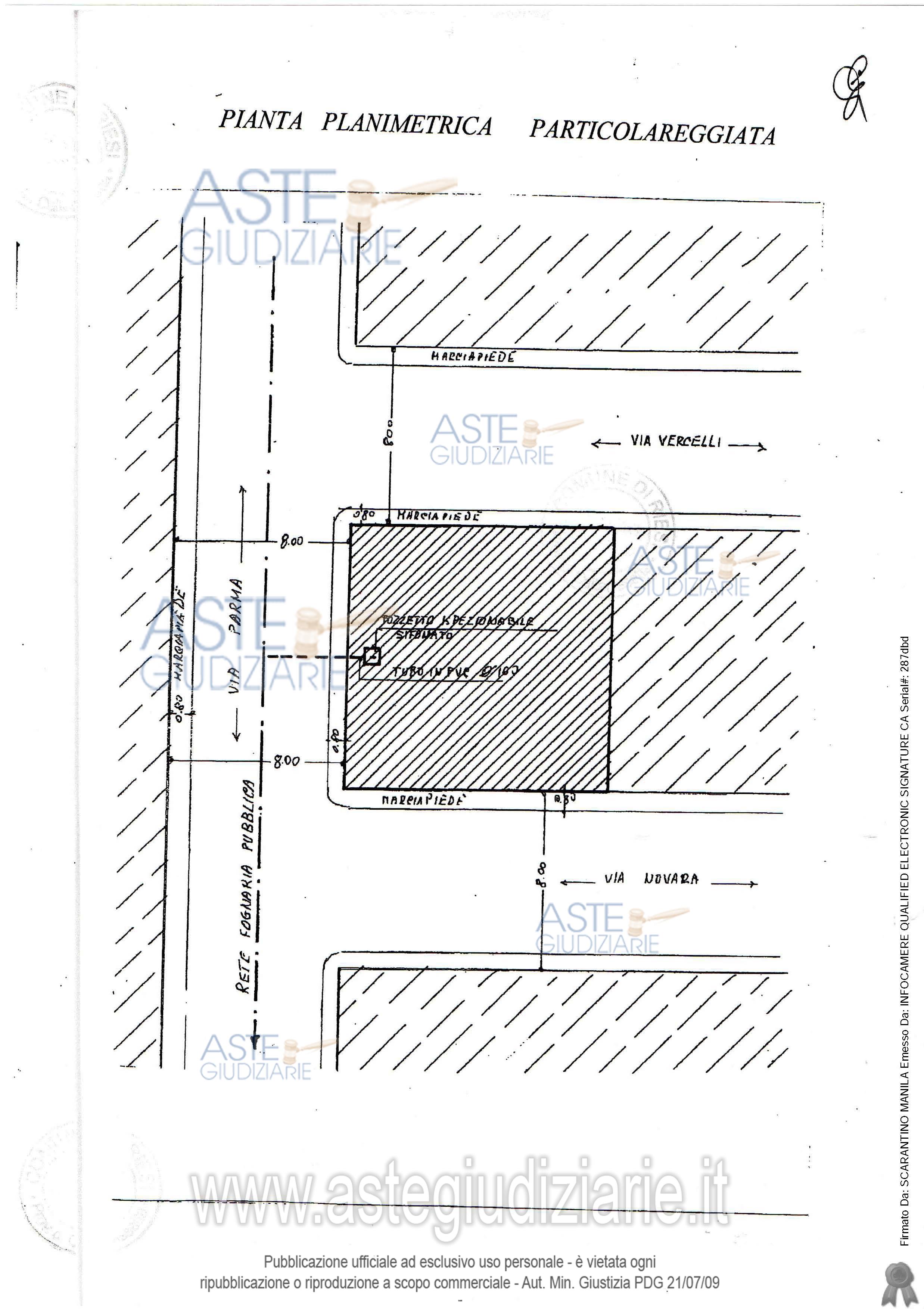
Fabbricato civile Via Vercelli,Via Parma angolo Via Novara, 93016 Riesi CL, Italia, 93016 Riesi (CL)

13,00
267,53
0
€ 30.185
Vendita all'asta Senza incanto, con gara telematica sincrona mista - LOTTO 1: L'immobile censito catastalmente al catasto terreni è costituito da un fabbricato caratterizzatoda un piano seminterrato ed un piano rialzato, in corso di costruzione, pertanto non abitabile. Prezzo base € 30.185,15 (offerta minima € 22.638,86). Data vendita 23/07/2026 ore 12:00. Giudice: Ester Rita Difrancesco. Professionista delegato alla vendita: Dott. Fabrizio Scalabrino. Custode Giudiziario: Dott. Fabrizio Scalabrino - Email "fabrizio.scalabrino@gmail.com". Rif. Tribunale di Caltanissetta - Esecuzione immobiliare post legge 80 n. 66/2022

Superficie 267,53 mq
Vani 13,00
Bagni
Piano 0

Tipologia di vendita Giudiziaria
Modalità di vendita Sincrona mista
Termine presentazione offerte 22/07/2026 ore 12:00
Data e ora inizio gara 23/07/2026 ore 12:00
Codice ID astegiudiziarie.it 4298944
13,00
267,53
0
€ 30.185

Ti interessa questa vendita?

north_east

Clicca qui per essere indirizzato alla scheda sul sito di provenienza

Bene di astegiudiziarie.it