highlight_off
Riferimento annuncio 297050 info

Fabbricato civile CONTRADA SAN LORENZO- VIALE REGIONE SICILIANA, 95036 Randazzo (CT)

1,00
100,00
0
€ 155.250
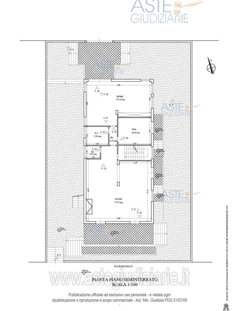
Vendita all'asta Senza incanto, con gara telematica sincrona mista - LOTTO 1: LOTTO UNO Villetta in corso di costruzione sita nel Comune di Randazzo, Contrada San Lorenzo, Viale Regione Siciliana, completa in ogni sua parte e composta da un piano seminterrato adibito a taverna e locale garage, un piano terra adibito a civile abitazione ed un piano primo adibito a sottotetto non abitabile. Prezzo base € 155.250,00 (offerta minima € 116.437,50). Data vendita 14/10/2025 ore 10:00. Professionista delegato alla vendita Dott. Marco Vinci - Email "mvinci@studiomvinci.it"; Tel. 095388875. Custode Giudiziario Dott. Marco Vinci - Email "mvinci@studiomvinci.it"; Tel. 095388875. Rif. Tribunale di Catania - Esecuzione immobiliare post legge 80 n. 3/2020

Superficie 100,00 mq
Vani 1,00
Bagni
Piano 0

Tipologia di vendita Giudiziaria
Modalità di vendita Sincrona mista
Termine presentazione offerte 01/01/1900 ore 00:00
Data e ora inizio gara 14/10/2025 ore 10:00
Codice ID astegiudiziarie.it 4321444
1,00
100,00
0
€ 155.250

Ti interessa questa vendita?

north_east

Clicca qui per essere indirizzato alla scheda sul sito di provenienza

Bene di astegiudiziarie.it