highlight_off
Riferimento annuncio 282318 info

Fabbricato civile Via Kennedy, 15044 Quargnento AL, Italia, 15044 Quargnento (AL)

0
€ 105.300
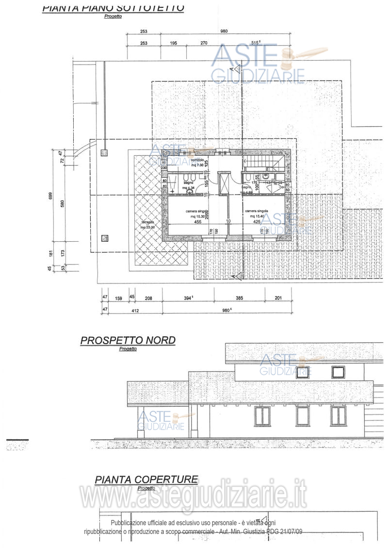
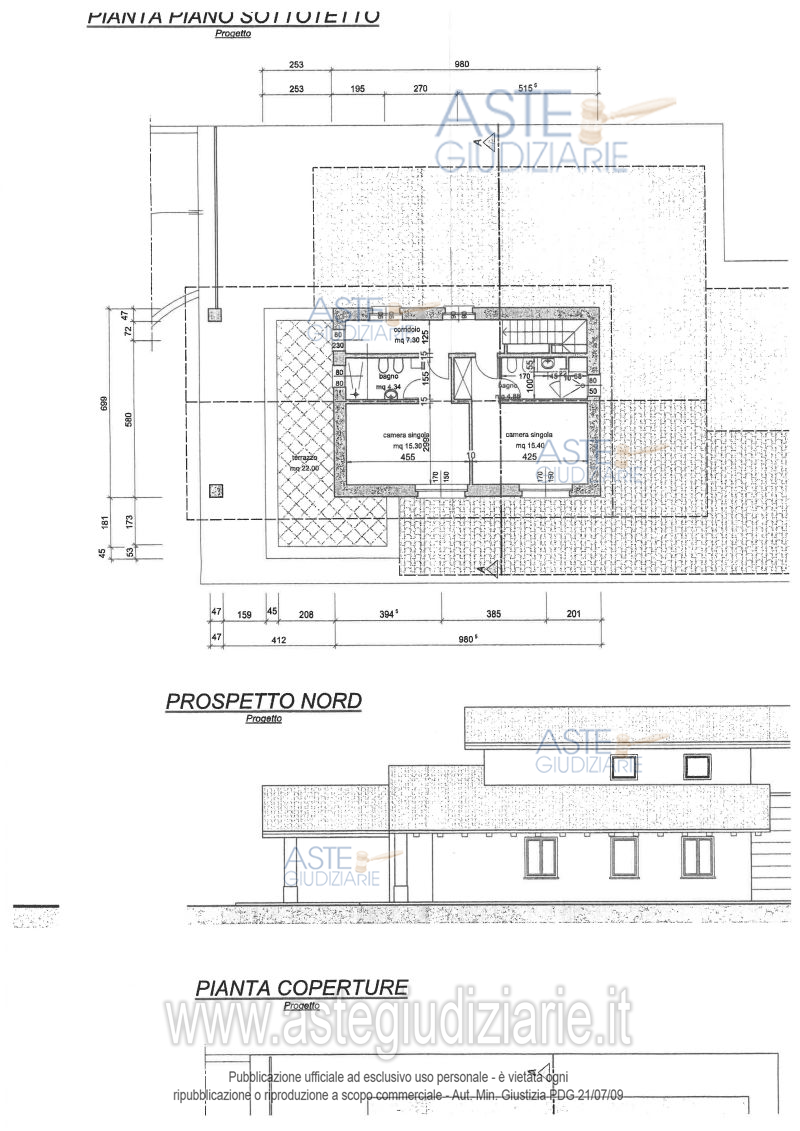
Vendita all'asta Senza incanto, con gara telematica asincrona - LOTTO UNICO: Fabbricato in fase di costruzione con area di pertinenza esclusiva a due piani fuori terra e un piano interrato. Al piano terra sono presenti: un portico, un ingresso/soggiorno, una cucina abitabile, un ripostiglio, uno studio, un bagno, un disimpegno, una camera con cabina armadi. Al piano primo sono presenti: due camere, due bagni, un corridoio ed un terrazzo. Al piano interrato sono presenti un locale autorimessa, un locale caldaia, una cantina, un bagno e un ampio locale di sgombero. Prezzo base € 105.300,00 (offerta minima € 78.975,00). Data inizio operazioni di vendita: 17/12/2025 ore 16:00. Professionista delegato alla vendita Avv. Elisa Maria Rovetto - Email "rovetto@mrlex.eu"; Cell. 3474304200; Tel. 0131261601. Custode Giudiziario Avv. Elisa Maria Rovetto - Email "rovetto@mrlex.eu"; Cell. 3474304200; Tel. 0131261601. Rif. Tribunale di Alessandria - Espropriazione immobiliare (cartabia) n. 312/2023

Superficie mq
Vani
Bagni
Piano 0

Tipologia di vendita Giudiziaria
Modalità di vendita Asincrona telematica
Termine presentazione offerte 01/01/1900 ore 00:00
Data e ora inizio gara 17/12/2025 ore 16:00
Codice ID astegiudiziarie.it 4309941
0
€ 105.300

Ti interessa questa vendita?

north_east

Clicca qui per essere indirizzato alla scheda sul sito di provenienza

Bene di astegiudiziarie.it