highlight_off
Riferimento annuncio 298014 info

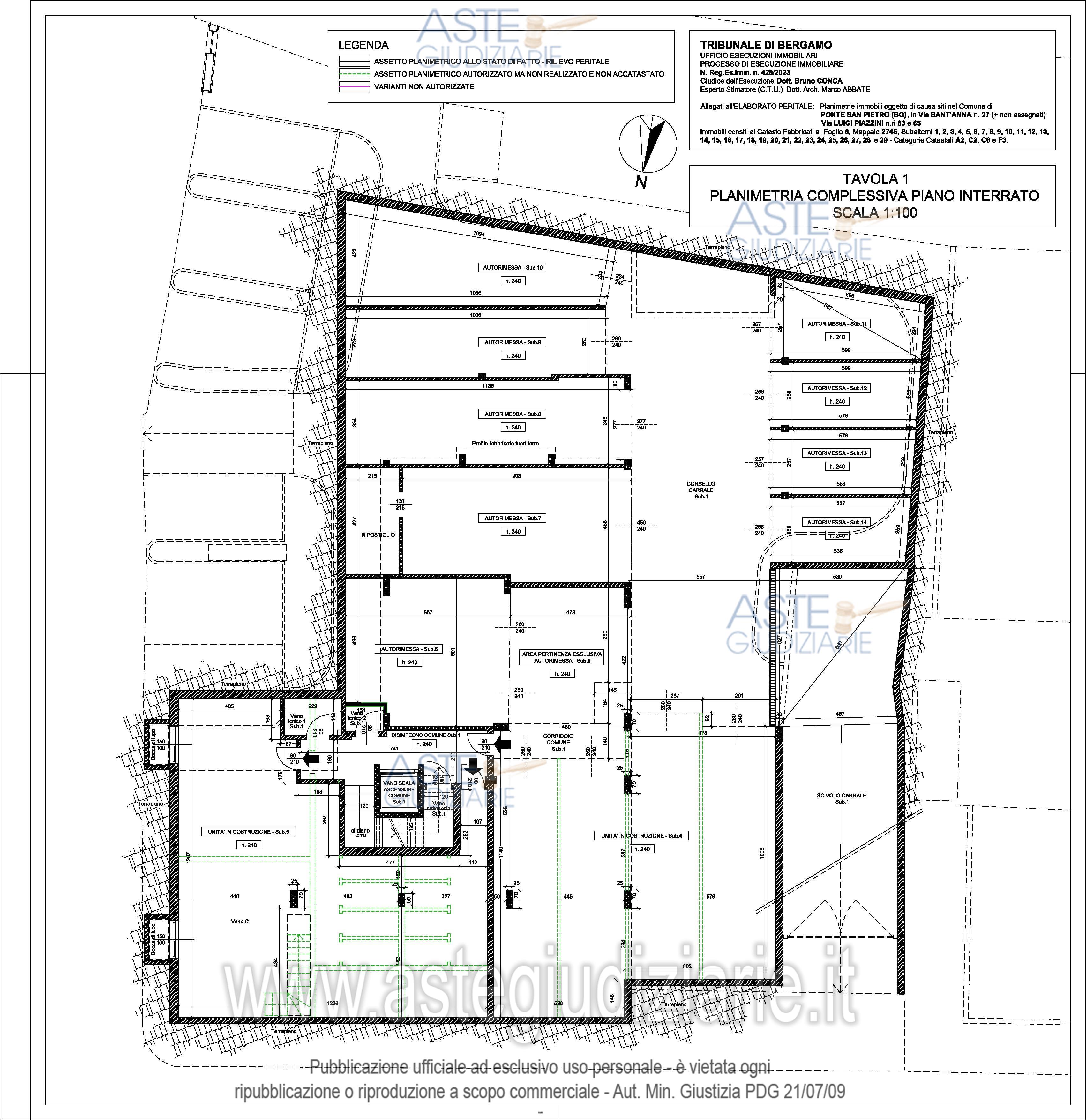
Fabbricato civile Via Sant'Anna, 27, 24036 Ponte San Pietro BG, Italia, 24036 Ponte San Pietro (BG)

3
€ 27.247
Vendita all'asta Senza incanto, con gara telematica asincrona - LOTTO 14: magazzino (locale sottotetto non abitabile) al rustico sito al piano terzo piano sottotetto. . Prezzo base € 27.246,85 (offerta minima € 20.435,14). Data inizio operazioni di vendita: 10/12/2025 ore 15:00. Professionista delegato alla vendita Avv. Simone Minola - Email "simoneminola@virgilio.it"; Tel. 0350779384. Custode Giudiziario Avv. Simone Minola - Email "simoneminola@virgilio.it"; Tel. 0350779384. Rif. Tribunale di Bergamo - Espropriazione immobiliare (cartabia) n. 428/2023

Superficie mq
Vani
Bagni
Piano 3

Tipologia di vendita Giudiziaria
Modalità di vendita Asincrona telematica
Termine presentazione offerte 09/12/2025 ore 12:00
Data e ora inizio gara 10/12/2025 ore 15:00
Codice ID astegiudiziarie.it 4322226
3
€ 27.247

Ti interessa questa vendita?

north_east

Clicca qui per essere indirizzato alla scheda sul sito di provenienza

Bene di astegiudiziarie.it