highlight_off
Riferimento annuncio 310048 info

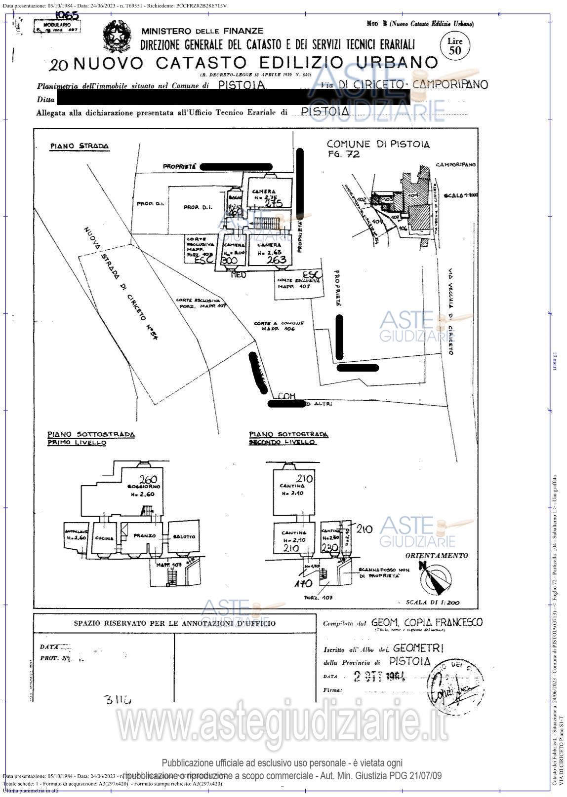
Fabbricato civile Via di Ciriceto, 61, 51100 Cireglio PT, Italia, 51100 Pistoia (PT)

7,00
184,00
0
€ 142.000
Vendita all'asta Senza incanto, con gara telematica asincrona - LOTTO 1: Fabbricato per civile abitazione su due piani, costituito da sette vani, due bagni oltre a tre vani sottostanti adibiti a cantina e locale tecnico. Inoltre è compreso un garage posto a piano terra (a livello della strada) con resede ad uso esclusivo. Prezzo base € 142.000,00 (offerta minima € 106.500,00). Data inizio operazioni di vendita: 15/10/2025 ore 12:00. Professionista delegato alla vendita Avv. Carlo Innocenti. Custode Giudiziario Isveg - Email "prenota.pt@isveg.it". Rif. Tribunale di Pistoia - Esecuzione immobiliare post legge 80 n. 10/2023

Superficie 184,00 mq
Vani 7,00
Bagni
Piano 0

Tipologia di vendita Giudiziaria
Modalità di vendita Asincrona telematica
Termine presentazione offerte 14/10/2025 ore 12:00
Data e ora inizio gara 15/10/2025 ore 12:00
Codice ID astegiudiziarie.it 4331765
7,00
184,00
0
€ 142.000

Ti interessa questa vendita?

north_east

Clicca qui per essere indirizzato alla scheda sul sito di provenienza

Bene di astegiudiziarie.it