highlight_off
Riferimento annuncio 325350 info

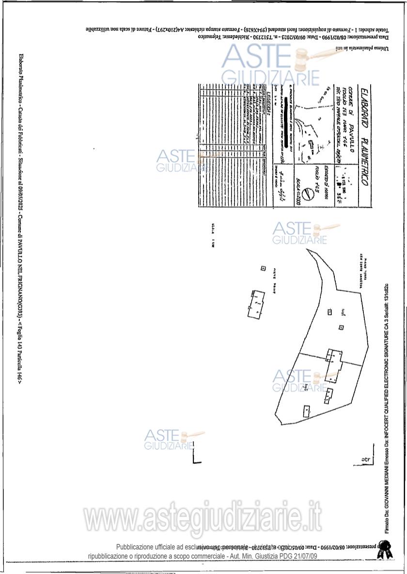
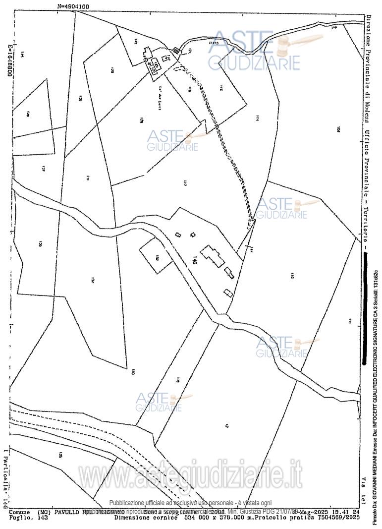
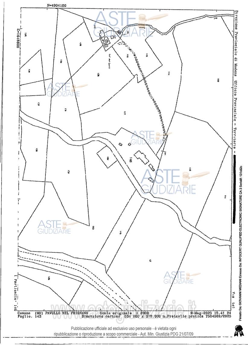
Fabbricato civile Via Fondovalle Vecchia, 42, ex via Gaiato 41026 Pavullo nel Frignano MO, Italia, 41026 Pavullo nel Frignano (MO)

6,00
2582,00
0
€ 41.000
Vendita all'asta Senza incanto, con gara telematica asincrona - LOTTO UNICO: Porzione di fabbricato terra cielo composto da piano terra: tettoia, ingresso con vano scale e cucina, ampio ripostiglio (ex stalla) porticato, altro ripostiglio; primo piano: camera da letto con vano scala, altra camera da letto con balcone, disimpegno, bagno, ripostiglio; Altro fabbricato al piano terra suddiviso in 3 ripostigli, altro fabbricato ad uso di tettoia, il tutto circondato da area cortiliva su tre lati. Quota di comproprietà pari a 489,95/1000 della part.146 ente urbano di mq.5270. Prezzo base € 41.000,00 (offerta minima € 30.750,00). Data inizio operazioni di vendita: 09/04/2026 ore 10:30. Professionista delegato alla vendita Avv. Federica Mondini - Email "studiolegale.avvmondini@gmail.com"; Tel. 059216812. Custode Giudiziario Alex Manelli - Email "visiteimmobili@ivgmodena.it"; Tel. 059847301. Rif. Tribunale di Modena - Espropriazione immobiliare (cartabia) n. 125/2024

Superficie 2582,00 mq
Vani 6,00
Bagni
Piano 0

Tipologia di vendita Giudiziaria
Modalità di vendita Asincrona telematica
Termine presentazione offerte 01/01/1900 ore 00:00
Data e ora inizio gara 09/04/2026 ore 10:30
Codice ID astegiudiziarie.it 4344172
6,00
2582,00
0
€ 41.000

Ti interessa questa vendita?

north_east

Clicca qui per essere indirizzato alla scheda sul sito di provenienza

Bene di astegiudiziarie.it