highlight_off
Riferimento annuncio 300500 info

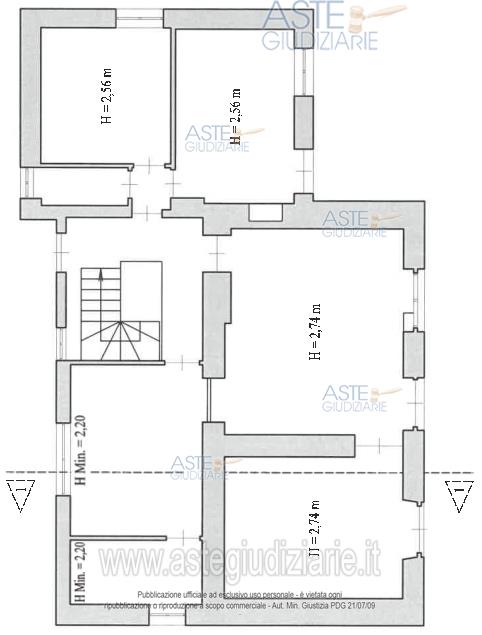
Fabbricato civile Via Canali, 17, 12087 Lorie CN, Italia, 12087 Pamparato (CN)

0
€ 13.990
Vendita all'asta Senza incanto, con gara telematica asincrona - LOTTO UNICO: fabbricato in corso di ristrutturazione sito in Pamparato (CN), Via Canali n. 17, Fraz. Serra, con retrostante terreno. Prezzo base € 13.990,00 (offerta minima € 10.492,00). Data inizio operazioni di vendita: 18/06/2026 ore 17:30. Giudice Roberta Bonaudi. Professionista delegato alla vendita Avv. Daniela Mondino - Email "mondino.tesio@multiwire.net"; Tel. 0174/41342. Custode Giudiziario Ifir Piemonte Ivg Srl - Email "richiestevisite.cuneo@ivgpiemonte.it"; Tel. 0171/1873923. Rif. Tribunale di Cuneo - Espropriazione immobiliare (cartabia) n. 114/2024

Superficie mq
Vani
Bagni
Piano 0

Tipologia di vendita Giudiziaria
Modalità di vendita Asincrona telematica
Termine presentazione offerte 17/06/2026 ore 12:00
Data e ora inizio gara 18/06/2026 ore 17:30
Codice ID astegiudiziarie.it 4324177
0
€ 13.990

Ti interessa questa vendita?

north_east

Clicca qui per essere indirizzato alla scheda sul sito di provenienza

Bene di astegiudiziarie.it