highlight_off
Riferimento annuncio 292795 info

Fabbricato civile Via Pilanuova, 118, 73048 Nardò LE, Italia, 73048 Nardò (LE)

6,00
113,05
0
€ 19.406
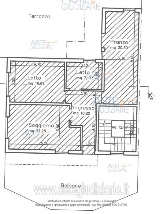
Vendita all'asta Senza incanto, con gara telematica asincrona - LOTTO UNICO: Unità immobiliare a NARDO' via Pilanuova 118, della superficie commerciale di 113,05 mq per la quota di 1000/1000 di piena proprietà.Lo stato dei luoghi al momento del sopralluogo vede l'unità immobiliare allo stato rustico, essendo priva delle opere di finitura edilizia nonché degli impianti di servizio, il tutto in mediocri condizioni di conservazione e manutenzione. Prezzo base € 19.406,00 (offerta minima € 14.555,00). Data inizio operazioni di vendita: 06/02/2026 ore 16:00. Professionista delegato alla vendita Avv. Alessia Mirabile - Email "avv.alessiamirabile@gmail.com"; Cell. 3270086044. Custode Giudiziario Avv. Alessia Mirabile - Email "avv.alessiamirabile@gmail.com"; Cell. 3270086044. Rif. Tribunale di Lecce - Espropriazione immobiliare (cartabia) n. 263/2023

Superficie 113,05 mq
Vani 6,00
Bagni
Piano 0

Tipologia di vendita Giudiziaria
Modalità di vendita Asincrona telematica
Termine presentazione offerte 01/01/1900 ore 00:00
Data e ora inizio gara 06/02/2026 ore 16:00
Codice ID astegiudiziarie.it 4318262
6,00
113,05
0
€ 19.406

Ti interessa questa vendita?

north_east

Clicca qui per essere indirizzato alla scheda sul sito di provenienza

Bene di astegiudiziarie.it