highlight_off
Riferimento annuncio 314815 info

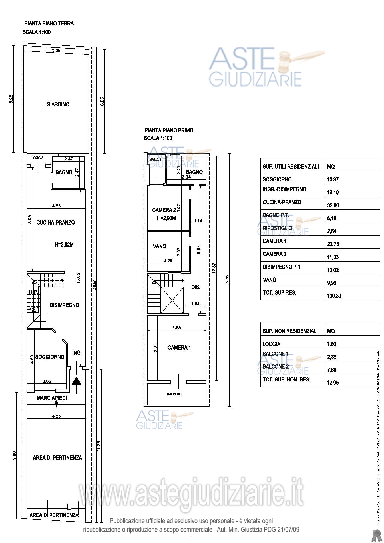
Fabbricato civile Via Giulio Cesare, 62, 74020 Monteparano TA, Italia, 74020 Monteparano (TA)

6,50
177,00
2
0
€ 82.000
Vendita all'asta Senza incanto, con gara telematica asincrona - LOTTO UNICO: Piena proprietà di fabbricato da cielo a terra ad uso residenziale, composto da piano terra e primo e con annessi area pertinenziale antistante e retrostante giardino. Prezzo base € 82.000,00 (offerta minima € 61.500,00). Data inizio operazioni di vendita: 19/11/2025 ore 16:00. Giudice Dott. Francesca Zanna. Professionista delegato alla vendita Avv. Saverio Di Fonzo. Custode Giudiziario Avv. Saverio Di Fonzo - Email "saveriodifonzo@libero.it"; Cell. 382952352. Rif. Tribunale di Taranto - Esecuzione immobiliare post legge 80 n. 175/2019

Superficie 177,00 mq
Vani 6,50
Bagni 2
Piano 0

Tipologia di vendita Giudiziaria
Modalità di vendita Asincrona telematica
Termine presentazione offerte 18/11/2025 ore 12:00
Data e ora inizio gara 19/11/2025 ore 16:00
Codice ID astegiudiziarie.it 4336007
6,50
177,00
2
0
€ 82.000

Ti interessa questa vendita?

north_east

Clicca qui per essere indirizzato alla scheda sul sito di provenienza

Bene di astegiudiziarie.it