highlight_off
Riferimento annuncio 245907 info

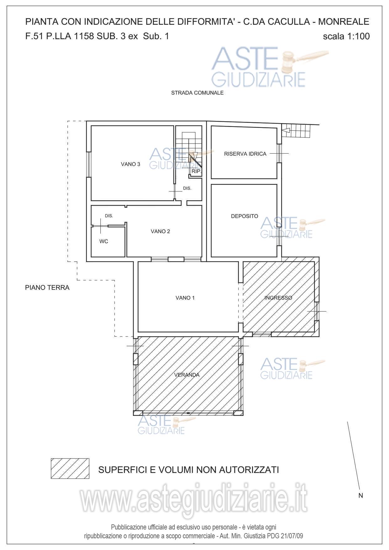
Fabbricato civile Contrada Caculla snc, 90046 Monreale (PA)

0
€ 11.686
Vendita all'asta Senza incanto, con gara telematica sincrona mista - LOTTO UNICO: Fabbricato in Monreale (PA), contrada Caculla, con cortile pertinenziale, composto da vani 2, cucina, wc bagno, disimpegno, cantina e cisterna a p.t. e da un vano, ripostiglio, disimpegno e ripiani al piano primo. Identificato al Catasto Fabbricati del Comune di Monreale al foglio 51, particella 1158 sub 3, già sub 1. Classamento: categoria F2 (unità collabente). appezzamento di terreno limitrofo, destinato catastalmente a vigneto, oggi non coltivato superficie m2 780, . Prezzo base € 11.686,00 (offerta minima € 8.800,00). Data vendita 26/02/2026 ore 11:30. Giudice Fabrizio Minutoli. Professionista delegato alla vendita Avv. Maurizio Pizzuto - Email "pizzuto.maurizio@libero.it"; Tel. 091362563. Custode Giudiziario Avv. Maurizio Pizzuto - Email "pizzuto.maurizio@libero.it"; Tel. 091362563. Rif. Tribunale di Palermo - Esecuzione immobiliare post legge 80 n. 115/2020

Superficie mq
Vani
Bagni
Piano 0

Tipologia di vendita Giudiziaria
Modalità di vendita Sincrona mista
Termine presentazione offerte 01/01/1900 ore 00:00
Data e ora inizio gara 26/02/2026 ore 11:30
Codice ID astegiudiziarie.it 4281657
0
€ 11.686

Ti interessa questa vendita?

north_east

Clicca qui per essere indirizzato alla scheda sul sito di provenienza

Bene di astegiudiziarie.it