highlight_off
Riferimento annuncio 329705 info

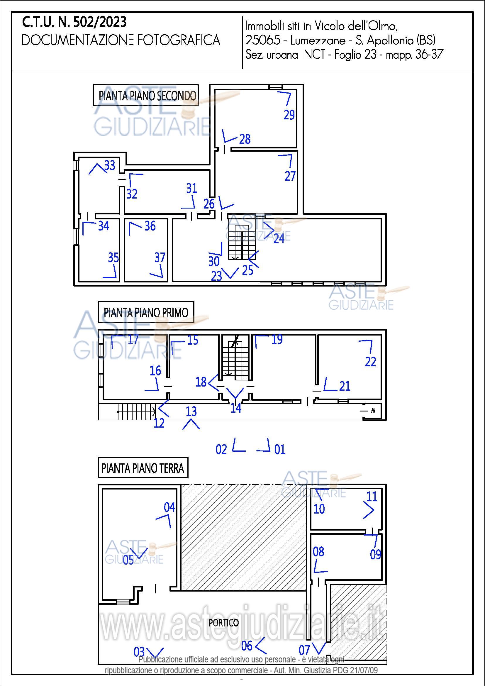
Fabbricato civile Vicolo dell'Olmo n. 6/8, 25065 Lumezzane (BS)

0
€ 65.500
Vendita all'asta Senza incanto, con gara telematica asincrona - LOTTO 21: Struttura fatiscente e, allo stato, non abitabile, situata all'interno del nucleostorico del centro abitato di Lumezzane: costituita da due unità immobiliari, fra loro comunicanti, eda due locali accessori. Competono le proporzionali quote delle parti comuni. Prezzo base € 65.500,00 (offerta minima € 49.125,00). Data inizio operazioni di vendita: 06/05/2026 ore 11:30. Professionista delegato alla vendita: Avv. Patrizia Ghizzoni. Custode Giudiziario: Avv. Patrizia Ghizzoni - Email "visiteimmobili@anpebrescia.it". Rif. Tribunale di Brescia - Espropriazione immobiliare (cartabia) n. 502/2023

Superficie mq
Vani
Bagni
Piano 0

Tipologia di vendita Giudiziaria
Modalità di vendita Asincrona telematica
Termine presentazione offerte 05/05/2026 ore 12:00
Data e ora inizio gara 06/05/2026 ore 11:30
Codice ID astegiudiziarie.it 4347765
0
€ 65.500

Ti interessa questa vendita?

north_east

Clicca qui per essere indirizzato alla scheda sul sito di provenienza

Bene di astegiudiziarie.it