Riferimento annuncio 298119
Fabbricato civile Via Sardi, 57100 Livorno (LI)
pl
€ 91.620
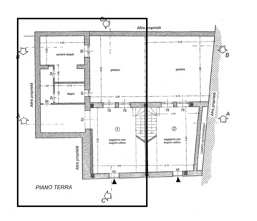
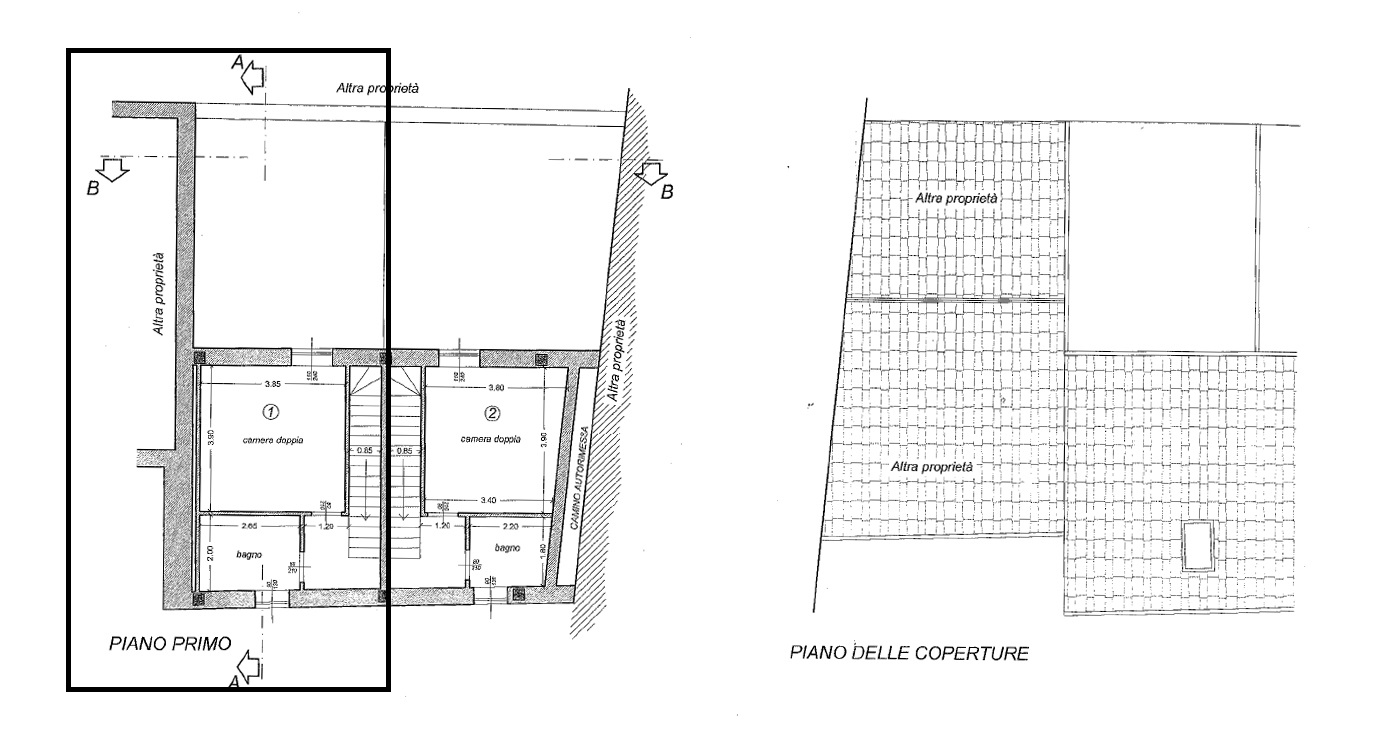
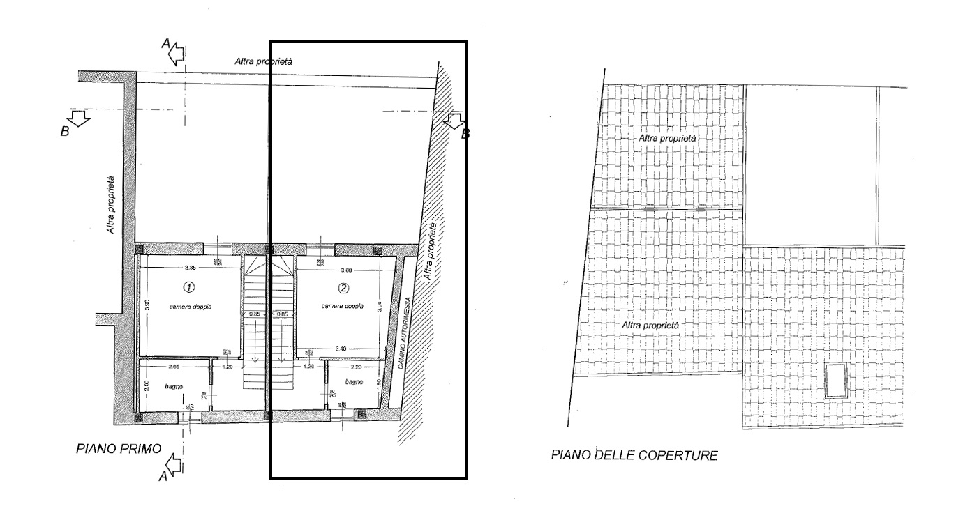
Complesso edilizio composto da 2 unità immobiliari in corso di costruzione:
ATP 668 - Appartamento al piano terra e primo di metri quadri 114,50 circa di SPL, oltre giardino di circa metri quadri 30,50.
ATP 670 - Appartamento al piano terra e primo, con accesso da viale di accesso ai parcheggi Odeon, di metri quadri 59 SLP oltre metri quadri 35,50 circa di giardino.
Accesso alle 2 unità in costruzione è previste tramite servitù costituita a carico dell’area, con accesso dal n.c. 27/A della via Sardi, destinata a viabilità di accesso alle autorimesse del confinante park Odeon
ATP 668 - Appartamento al piano terra e primo di metri quadri 114,50 circa di SPL, oltre giardino di circa metri quadri 30,50.
ATP 670 - Appartamento al piano terra e primo, con accesso da viale di accesso ai parcheggi Odeon, di metri quadri 59 SLP oltre metri quadri 35,50 circa di giardino.
Accesso alle 2 unità in costruzione è previste tramite servitù costituita a carico dell’area, con accesso dal n.c. 27/A della via Sardi, destinata a viabilità di accesso alle autorimesse del confinante park Odeon
Building complex consisting of 2 real estate units under construction:
ATP 668 - Apartment on the ground floor and first floor of approximately 114.50 square meters of Gross Floor Area (SPL), in addition to a garden of about 30.50 square meters.
ATP 670 - Apartment on the ground floor and first floor, with access from the access road to the Odeon parking lots, of approximately 59 square meters SLP in addition to about 35.50 square meters of garden.
Access to the 2 units under construction is provided through an easement established on the area, with access from n.c. 27/A of Via Sardi, intended as access road to the adjoining Odeon parking garages.
ATP 668 - Apartment on the ground floor and first floor of approximately 114.50 square meters of Gross Floor Area (SPL), in addition to a garden of about 30.50 square meters.
ATP 670 - Apartment on the ground floor and first floor, with access from the access road to the Odeon parking lots, of approximately 59 square meters SLP in addition to about 35.50 square meters of garden.
Access to the 2 units under construction is provided through an easement established on the area, with access from n.c. 27/A of Via Sardi, intended as access road to the adjoining Odeon parking garages.
Vente en attente de l’émission d’un avis nouveau. Complexe immobilier composé de 2 unités en cours de construction :
ATP 668 - Appartement au rez-de-chaussée et premier étage d'environ 114,50 mètres carrés de surface plancher (SPL), plus un jardin d'environ 30,50 mètres carrés.
ATP 670 - Appartement au rez-de-chaussée et premier étage, avec accès depuis l'allée menant aux parkings Odeon, d'environ 59 mètres carrés de surface locative privée (SLP) plus environ 35,50 mètres carrés de jardin.
L'accès aux 2 unités en construction est prévu par le biais d'une servitude établie sur la propriété, avec un accès depuis le n°27/A de la Via Sardi, destiné à être un accès aux garages du parc adjacent Odeon.
ATP 668 - Appartement au rez-de-chaussée et premier étage d'environ 114,50 mètres carrés de surface plancher (SPL), plus un jardin d'environ 30,50 mètres carrés.
ATP 670 - Appartement au rez-de-chaussée et premier étage, avec accès depuis l'allée menant aux parkings Odeon, d'environ 59 mètres carrés de surface locative privée (SLP) plus environ 35,50 mètres carrés de jardin.
L'accès aux 2 unités en construction est prévu par le biais d'une servitude établie sur la propriété, avec un accès depuis le n°27/A de la Via Sardi, destiné à être un accès aux garages du parc adjacent Odeon.
Vente en attente de l’émission d’un avis nouveau. Gebäudekomplex bestehend aus 2 Baueinheiten im Bau:ATP 668 - Wohnung im Erdgeschoss und ersten Stock von ca. 114,50 Quadratmetern, zusätzlich Garten von ca. 30,50 Quadratmetern.ATP 670 - Wohnung im Erdgeschoss und ersten Stock, mit Zugang von der Zufahrtsstraße zum Odeon-Parkplatz, von ca. 59 Quadratmetern sowie ca. 35,50 Quadratmetern Garten.Zugang zu den 2 im Bau befindlichen Einheiten erfolgt über eine Dienstbarkeit, die auf dem Grundstück eingerichtet ist, mit Zugang von Straße Sardi nr. 27/A, die als Zufahrtsstraße zu den Garagen des benachbarten Park Odeon dient.
该建筑群包括2个正在建造中的物业单位: ATP 668 - 面积约114.50平方米的一楼和二楼公寓,以及约30.50平方米的花园。ATP 670 - 一楼和二楼公寓,从通往尤迪昂停车场的通道进入,SLP约59平方米,外加约35.50平方米的花园。进入这两个正在建造中的单位将通过负担给予的用地权,从萨尔迪大街的27/A号进入,用作通往邻近尤迪恩公园停车场车库的通道。
Объявление аукциона по данной продаже будет вскоре опубликовано. Здание, состоящее из 2 строительных единиц:
ATP 668 - Квартира на первом и втором этажах площадью примерно 114,50 квадратных метров, с садом примерно 30,50 квадратных метров.
ATP 670 - Квартира на первом этаже и втором, с доступом от проезда к парковке Одеон, площадью 59 квадратных метров, сад площадью примерно 35,50 квадратных метров. Доступ к 2 строительным единицам предусмотрен через сервитут, созданный для участка, с доступом из n.c. 27/A на улице Сарди, предназначенной для проезда к гаражам соседнего парка Одеон.
ATP 668 - Квартира на первом и втором этажах площадью примерно 114,50 квадратных метров, с садом примерно 30,50 квадратных метров.
ATP 670 - Квартира на первом этаже и втором, с доступом от проезда к парковке Одеон, площадью 59 квадратных метров, сад площадью примерно 35,50 квадратных метров. Доступ к 2 строительным единицам предусмотрен через сервитут, созданный для участка, с доступом из n.c. 27/A на улице Сарди, предназначенной для проезда к гаражам соседнего парка Одеон.
| Superficie | mq |
|---|---|
| Vani | |
| Bagni | |
| Piano | pl |
| Tipologia di vendita | Privata |
|---|---|
| Modalità di vendita | Asincrona telematica |
| Termine presentazione offerte | 05/05/2025 ore 12:00 |
| Data e ora inizio gara | 06/05/2025 ore 09:00 |