Riferimento annuncio 298118
Fabbricato civile Via Sardi, 57100 Livorno (LI)
pl
€ 137.000
Complesso edilizio in corso di costruzione composto da:
ATP 664 - Appartamento di metri quadri 103 SPL oltre metri quadri 25,50 circa di terrazza esterna e metri quadri 116 di giardino.
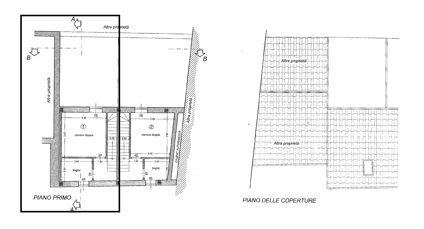
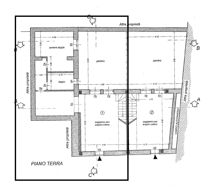
ATP 668 - Appartamento al piano terra e primo di metri quadri 114,50 circa di SPL, oltre giardino di circa metri quadri 30,50.
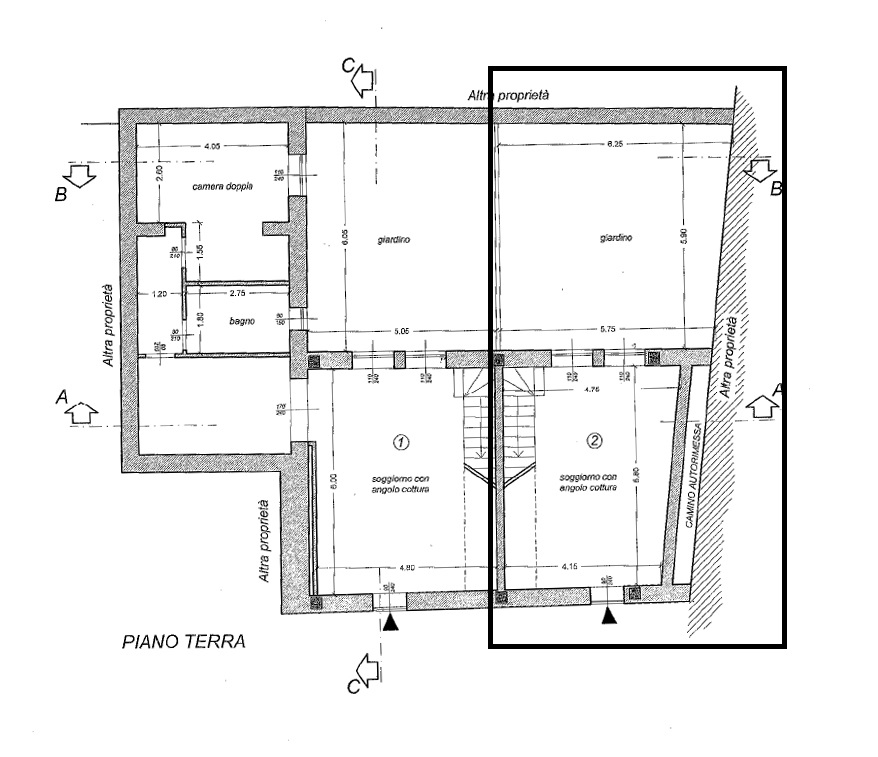
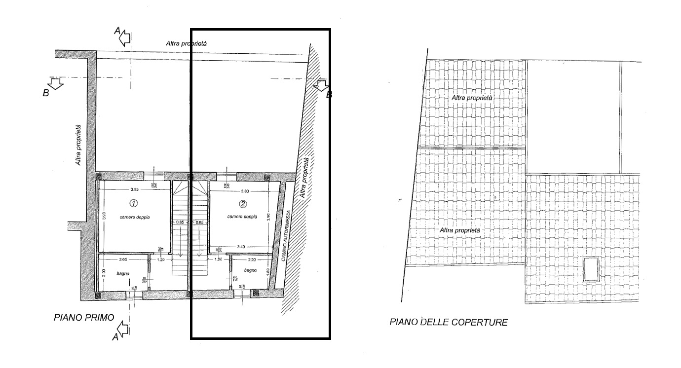
ATP 670 - Appartamento al piano terra e primo, con accesso da viale di accesso ai parcheggi Odeon, di metri quadri 59 SLP oltre metri quadri 35,50 circa di giardino.
L'accesso è previsto tramite servitù costituita a carico dell’area, con accesso dal n.c. 27/A della via Sardi, destinata a viabilità di accesso alle autorimesse del confinante park Odeon.
Building complex under construction consisting of:
ATP 664 - Apartment under construction with a surface area of 103 square meters GFA plus approximately 25.50 square meters of external terrace and 116 square meters of garden.
ATP 668 - Ground floor and first-floor apartment with approximately 114.50 square meters GFA, plus a garden of approximately 30.50 square meters.
ATP 670 - Ground floor and first-floor apartment, with access from the access road to the Odeon parking lots, with a surface area of 59 square meters SLP plus approximately 35.50 square meters of garden.
Access is provided through a servitude established on the area, with access from n.c. 27/A of Via Sardi, intended for access to the adjacent Odeon park garages.
ATP 664 - Apartment under construction with a surface area of 103 square meters GFA plus approximately 25.50 square meters of external terrace and 116 square meters of garden.
ATP 668 - Ground floor and first-floor apartment with approximately 114.50 square meters GFA, plus a garden of approximately 30.50 square meters.
ATP 670 - Ground floor and first-floor apartment, with access from the access road to the Odeon parking lots, with a surface area of 59 square meters SLP plus approximately 35.50 square meters of garden.
Access is provided through a servitude established on the area, with access from n.c. 27/A of Via Sardi, intended for access to the adjacent Odeon park garages.
| Superficie | mq |
|---|---|
| Vani | |
| Bagni | |
| Piano | pl |
| Tipologia di vendita | Privata |
|---|---|
| Modalità di vendita | Asincrona telematica |
| Termine presentazione offerte | 05/05/2025 ore 12:00 |
| Data e ora inizio gara | 06/05/2025 ore 09:00 |