highlight_off
Riferimento annuncio 242047 info

Fabbricato civile contrada rinella s.n.c., 90025 Lercara Friddi (PA)

0
€ 9.615
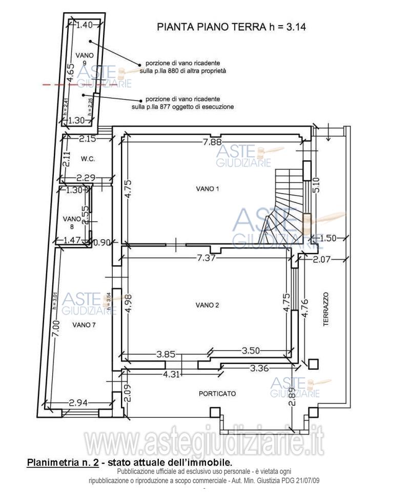
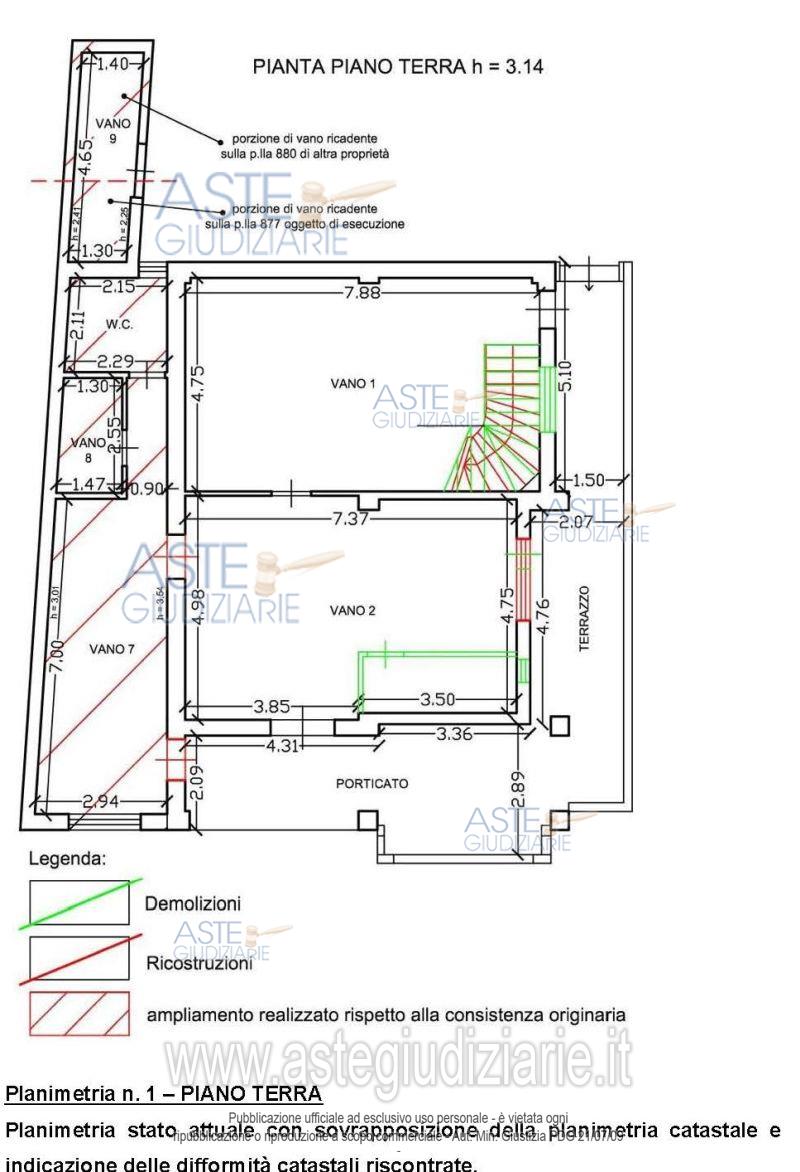
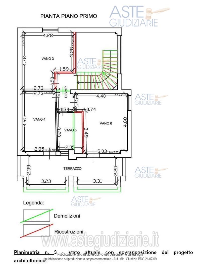
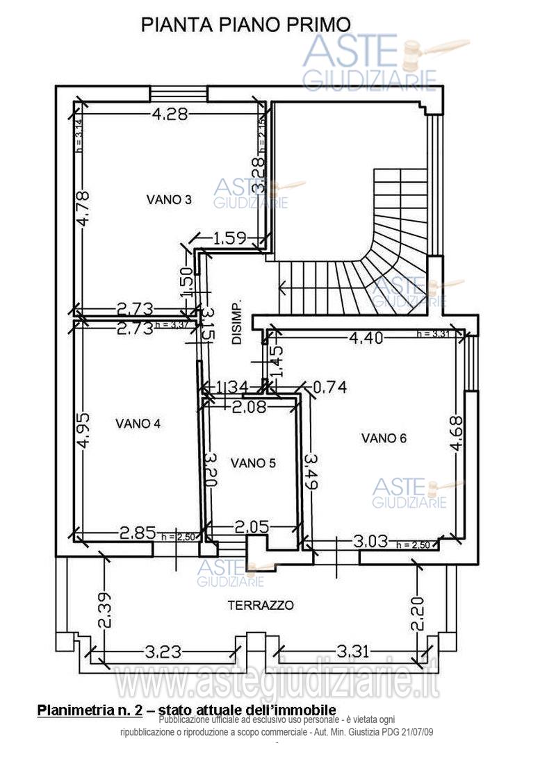
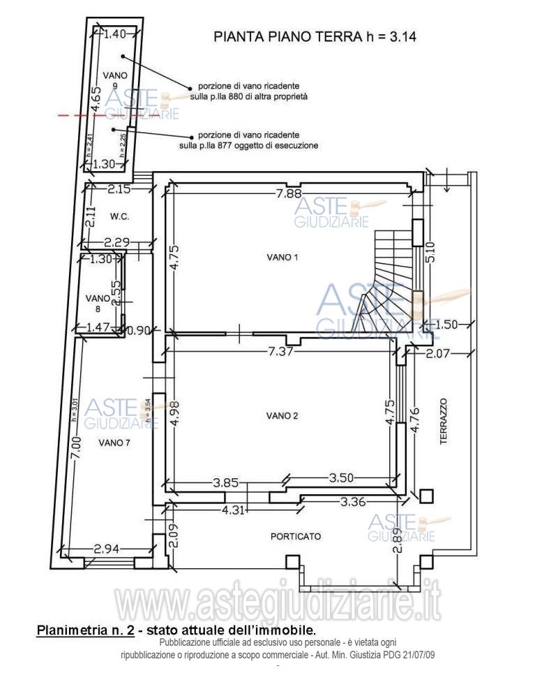
Vendita all'asta Senza incanto, con gara telematica sincrona - LOTTO 1: Piena proprietà per la quota di ½ di unità immobiliare in corso di costruzione, adibita a civile abitazione con annessa corte di pertinenza, sita nel comune di Lercara Friddi (PA) contrada Rinella snc, in catasto al foglio di mappa n. 21, particella 877 del n.c.e.u. Prezzo base € 9.615,39 (offerta minima € 7.211,54). Data vendita 19/11/2025 ore 10:30. Professionista delegato alla vendita Avv. Roberto Battaglia - Email "avv.robertobattaglia@gmail.com"; Tel. 0917309027. Custode Giudiziario Avv. Roberto Battaglia - Email "avv.robertobattaglia@gmail.com"; Tel. 0917309027. Rif. Tribunale di Termini Imerese - Esecuzione immobiliare post legge 80 n. 133/2021

Superficie mq
Vani
Bagni
Piano 0

Tipologia di vendita Giudiziaria
Modalità di vendita Sincrona telematica
Termine presentazione offerte 18/11/2025 ore 17:00
Data e ora inizio gara 19/11/2025 ore 10:30
Codice ID astegiudiziarie.it 4278801
0
€ 9.615

Ti interessa questa vendita?

north_east

Clicca qui per essere indirizzato alla scheda sul sito di provenienza

Bene di astegiudiziarie.it