highlight_off
Riferimento annuncio 160471 info

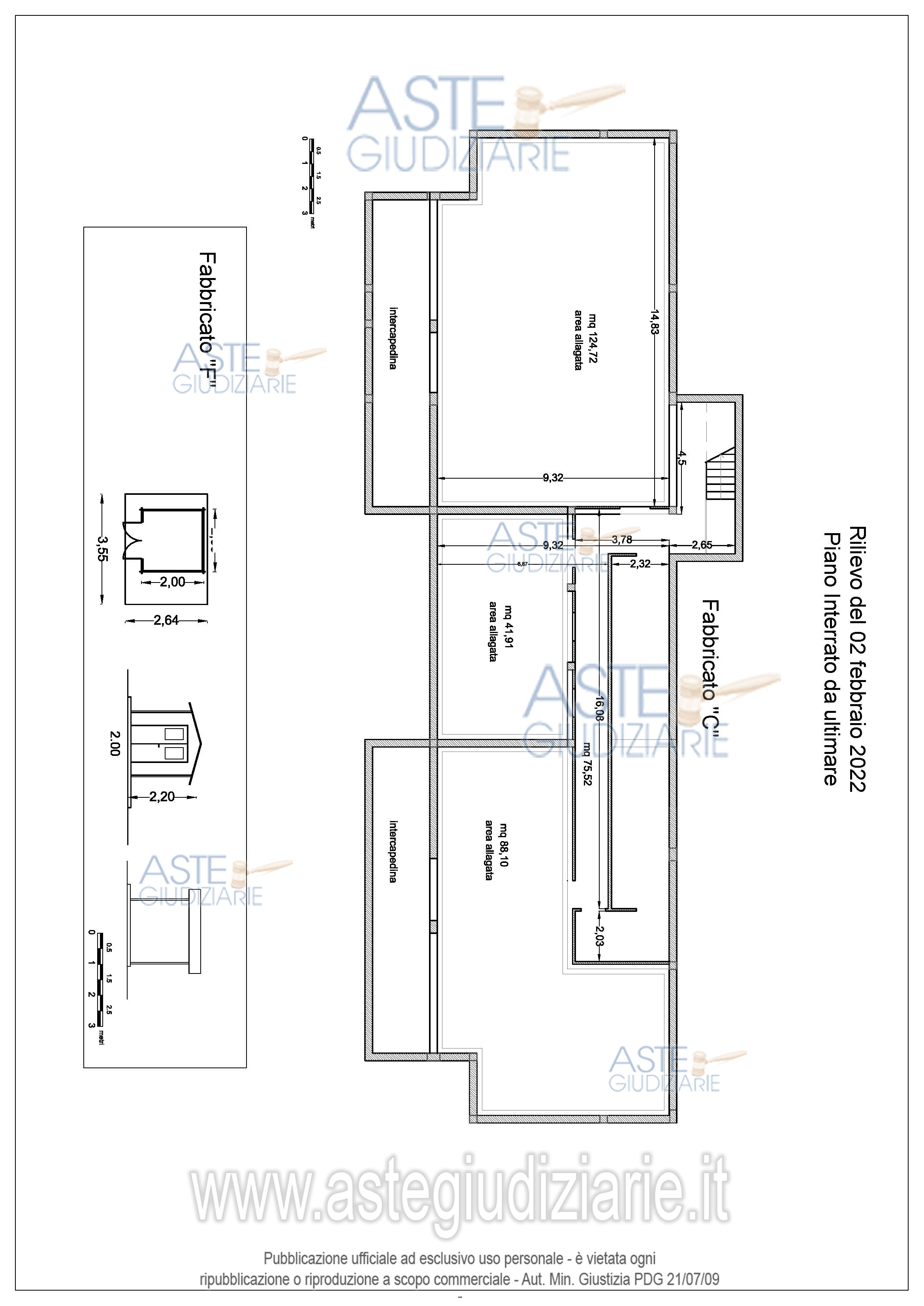
Fabbricato civile Strada Litoranea 3930, 04100 Latina (LT)

8,00
243,00
0
€ 297.742
Vendita all'asta Senza incanto, con gara telematica asincrona - LOTTO UNICO: Terreno di forma regolare con fabbricati . Prezzo base € 297.741,75 (offerta minima € 223.306,31). Data inizio operazioni di vendita: 02/12/2025 ore 12:00. Professionista delegato alla vendita Avv. Assunta Bucciarelli - Email "ass.bucciarelli@libero.it". Custode Giudiziario Avv. Assunta Bucciarelli - Email "ass.bucciarelli@libero.it". Rif. Tribunale di Latina - Esecuzione immobiliare post legge 80 n. 44/2018

Superficie 243,00 mq
Vani 8,00
Bagni
Piano 0

Tipologia di vendita Giudiziaria
Modalità di vendita Asincrona telematica
Termine presentazione offerte 01/12/2025 ore 12:00
Data e ora inizio gara 02/12/2025 ore 12:00
Codice ID astegiudiziarie.it 4264257
8,00
243,00
0
€ 297.742

Ti interessa questa vendita?

north_east

Clicca qui per essere indirizzato alla scheda sul sito di provenienza

Bene di astegiudiziarie.it