highlight_off
Riferimento annuncio 232358 info

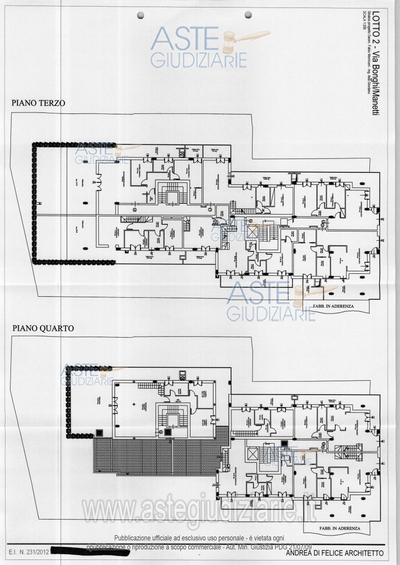
Fabbricato civile Via Ruggero Bonghi, 20, 58100 Grosseto GR, Italia, 58100 Grosseto (GR)

0
€ 1.420.800
Vendita all'asta Senza incanto, con gara telematica asincrona - LOTTO 2: Intera piena proprietà di fabbricati oggetto di intervento di sostituzione edilizia in corso d’opera, regolarmente concessionato, che prevede la demolizione delle volumetrie insistenti sull’area di sedime e la ricostruzione di volumetrie ad uso residenziale e commerciale. Ad oggi è stata realizzata solo parte dei lavori.Volume (variante): mc 7.332,44. Superficie lorda (variante): mq 2.440,01. Prezzo base € 1.420.800,00 (offerta minima € 1.065.600,00). Data inizio operazioni di vendita: 14/07/2026 ore 10:00. Giudice: Dott. Cristina Nicolò. Professionista delegato alla vendita: Dott. Adolfo Tonini - Email "toniniadolfo@gmail.com"; Cell. 349/1771862. Custode Giudiziario: Dott. Adolfo Tonini - Email "toniniadolfo@gmail.com"; Cell. 349/1771862. Rif. Tribunale di Grosseto - Esecuzione immobiliare post legge 80 n. 231/2012

Superficie mq
Vani
Bagni
Piano 0

Tipologia di vendita Giudiziaria
Modalità di vendita Asincrona telematica
Termine presentazione offerte 01/01/1900 ore 00:00
Data e ora inizio gara 14/07/2026 ore 10:00
Codice ID astegiudiziarie.it 290003
0
€ 1.420.800

Ti interessa questa vendita?

north_east

Clicca qui per essere indirizzato alla scheda sul sito di provenienza

Bene di astegiudiziarie.it