highlight_off
Riferimento annuncio 316835 info

Fabbricato civile Via Goito, 67055 Gioia dei Marsi AQ, Italia, 67055 Gioia dei Marsi (AQ)

15,00
334,56
0
€ 117.000
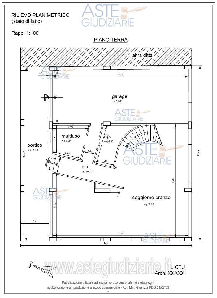
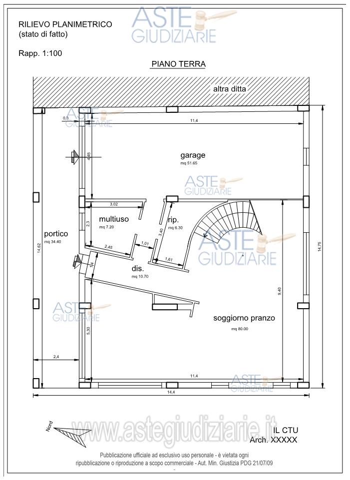
Vendita all'asta Senza incanto, con gara telematica asincrona - LOTTO UNICO: Diritti di piena proprietà 1/1 su fabbricato di civile abitazione, in corso di costruzione, ubicato nel Comune di Gioia dei Marsi (AQ), 67055, in via Goito snc in una zona completamente urbanizzata e a poca distanza dal centro del paese, l'immobile è costituito da un piano terra con annesso portico e garage e da un piano primo dotato di balcone e terrazza, categoria catastale F3 (fabbricato in corso di costruzione) superficie convenzionale complessiva mq.334,56. Prezzo base € 117.000,00 (offerta minima € 87.750,00). Data inizio operazioni di vendita: 10/12/2025 ore 10:00. Professionista delegato alla vendita Avv. Annachiara Esposito - Email "avvannachiaraesposito@gmail.com"; Cell. 3401711581; Tel. 0863455154. Custode Giudiziario Avv. Annachiara Esposito - Email "avvannachiaraesposito@gmail.com"; Cell. 3401711581; Tel. 0863455154. Rif. Tribunale di Avezzano - Espropriazione immobiliare (cartabia) n. 8/2025

Superficie 334,56 mq
Vani 15,00
Bagni
Piano 0

Tipologia di vendita Giudiziaria
Modalità di vendita Asincrona telematica
Termine presentazione offerte 01/01/1900 ore 00:00
Data e ora inizio gara 10/12/2025 ore 10:00
Codice ID astegiudiziarie.it 4336705
15,00
334,56
0
€ 117.000

Ti interessa questa vendita?

north_east

Clicca qui per essere indirizzato alla scheda sul sito di provenienza

Bene di astegiudiziarie.it