Riferimento annuncio 298878
        
    
    Fabbricato civile Via Cairoli, 7, 28074 Ghemme NO, Italia, 28074 Ghemme (NO)
                
                0
            
        
€ 25.900    
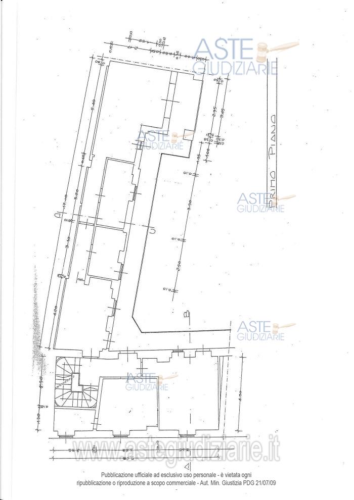
                Vendita all'asta Senza incanto, con gara telematica asincrona - LOTTO UNICO:  Piena proprietà per la quota di 1000/1000 di fabbricato residenziale in corso di ristrutturazione. Prezzo base € 25.900,00 (offerta minima € 19.425,00). Data inizio operazioni di vendita: 12/01/2026 ore 09:30. Professionista delegato alla vendita Dott. Giulio Gasloli - Email "infoaste@cegnovara.it"; Tel. 0321397588. Custode Giudiziario  Ifir Piemonte Ivg Srl - Email "richiestevisite.novara@ivgpiemonte.it"; Tel. 0321628676.  Rif. Tribunale di Novara - Esecuzione immobiliare post legge 80 n. 82/2022
            
   
| Superficie | mq | 
|---|---|
| Vani | |
| Bagni | |
| Piano | 0 | 
| Tipologia di vendita | Giudiziaria | 
|---|---|
| Modalità di vendita | Asincrona telematica | 
| Termine presentazione offerte | 11/01/2026 ore 12:00 | 
| Data e ora inizio gara | 12/01/2026 ore 09:30 | 
 
                         
                         
                         
                         
                         
                         
                         
                         
                         
                        