highlight_off
Riferimento annuncio 317695 info

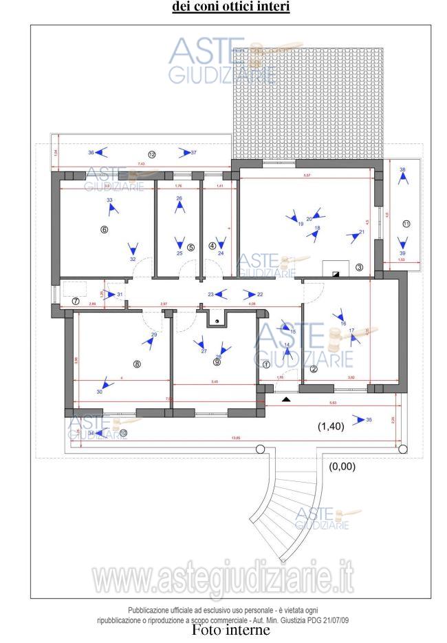
Fabbricato civile Località Torre Barriate - Strada Provinciale 230, 84025 Eboli (SA)

7,50
189,00
2
0
€ 84.666
Vendita all'asta Senza incanto, con gara telematica asincrona - LOTTO 2: Unità immobiliare composta da: piano seminterrato, piano rialzato, sottotetto e spazio esterno. Prezzo base € 84.666,00 (offerta minima € 63.499,50). Data inizio operazioni di vendita: 18/12/2025 ore 15:00. Giudice Dott. Enza Faracchio. Professionista delegato alla vendita Avv. Stefania Di Florio. Custode Giudiziario Avv. Stefania Di Florio - Email "avv.stefaniadiflorio@gmail.com"; Cell. 3289542426. Rif. Tribunale di Salerno - Esecuzione immobiliare post legge 80 n. 347/2012

Superficie 189,00 mq
Vani 7,50
Bagni 2
Piano 0

Tipologia di vendita Giudiziaria
Modalità di vendita Asincrona telematica
Termine presentazione offerte 17/12/2025 ore 13:00
Data e ora inizio gara 18/12/2025 ore 15:00
Codice ID astegiudiziarie.it 259340
7,50
189,00
2
0
€ 84.666

Ti interessa questa vendita?

north_east

Clicca qui per essere indirizzato alla scheda sul sito di provenienza

Bene di astegiudiziarie.it