highlight_off
Riferimento annuncio 56508 info

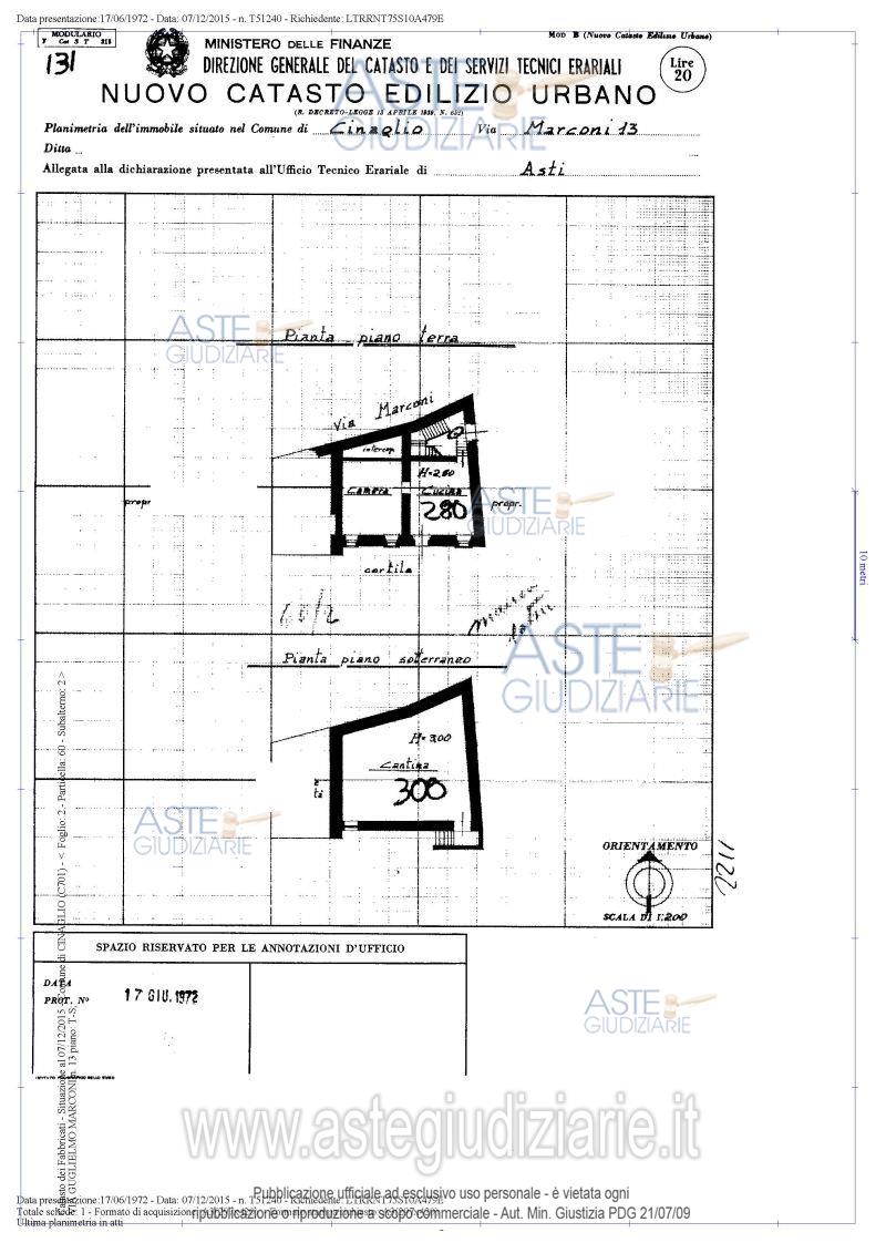
Fabbricato civile Via Guglielmo Marconi, 13, 14020 Cinaglio (AT)

10,00
833,00
0
€ 27.000
Vendita all'asta Senza incanto, con gara telematica asincrona - LOTTO UNICO: Fabbricato di civile abitazione, elevantesi a tre piani fuori terra, oltre a piano interrato, entrostante a terreno pertinenziale, oltre fabbricato elevantesi a due piani fuori terra. Prezzo base € 27.000,00 (offerta minima € 20.250,00). Data inizio operazioni di vendita: 19/11/2025 ore 15:00. Professionista delegato alla vendita Not. Lucia Cotto - Tel. 0173440638. Custode Giudiziario Ifir Piemonte Ivg Srl - Email "richiestevisite.asti@ivgpiemonte.it"; Cell. 3664299971; Tel. 011485338-0114731714. Rif. Tribunale di Asti - Contenzioso civile n. 1545/2017

Superficie 833,00 mq
Vani 10,00
Bagni
Piano 0

Tipologia di vendita Giudiziaria
Modalità di vendita Asincrona telematica
Termine presentazione offerte 18/11/2025 ore 12:00
Data e ora inizio gara 19/11/2025 ore 15:00
Codice ID astegiudiziarie.it 2790601
10,00
833,00
0
€ 27.000

Ti interessa questa vendita?

north_east

Clicca qui per essere indirizzato alla scheda sul sito di provenienza

Bene di astegiudiziarie.it