highlight_off
Riferimento annuncio 322790 info

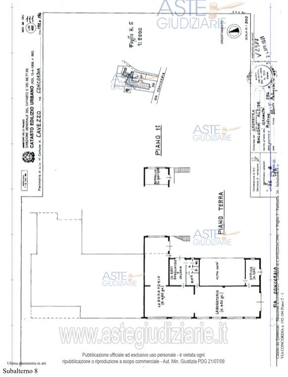
Fabbricato civile Via Concordia, 41032 Cavezzo (MO)

4,50
386,00
0
€ 61.000
Vendita all'asta Senza incanto, con gara telematica asincrona - LOTTO UNICO: Piena proprietà di 2 edifici adiacenti su un’area comune che si presentano come un cantiere abbandonato di cui uno ad uso civile abitazione, l’altro a capannone industriale-artigianale che affianca ed in parte compenetra l’edificio abitativo;consiste in: un fabbricato residenziale ad uso abitativo a 3 piani fuori terra, stretto e lungo (circa 6x20 metri) coperto a due acque e dotato di due balconi. Il sottotetto è una soffitta non abitabile ; un capannone con i soli muri perimetrali senza copertura. Prezzo base € 61.000,00 (offerta minima € 45.750,00). Data inizio operazioni di vendita: 26/02/2026 ore 12:00. Professionista delegato alla vendita Avv. Simona Bacchelli - Email "avv.bacchelli@gmail.com"; Cell. 3298625834; Tel. 0599110501. Custode Giudiziario Alex Manelli - Email "visiteimmobili@ivgmodena.it"; Tel. 059847301. Rif. Tribunale di Modena - Espropriazione immobiliare (cartabia) n. 159/2024

Superficie 386,00 mq
Vani 4,50
Bagni
Piano 0

Tipologia di vendita Giudiziaria
Modalità di vendita Asincrona telematica
Termine presentazione offerte 01/01/1900 ore 00:00
Data e ora inizio gara 26/02/2026 ore 12:00
Codice ID astegiudiziarie.it 4342001
4,50
386,00
0
€ 61.000

Ti interessa questa vendita?

north_east

Clicca qui per essere indirizzato alla scheda sul sito di provenienza

Bene di astegiudiziarie.it