highlight_off
Riferimento annuncio 324597 info

Fabbricato civile Frazione di Fratta, Via Filermo, 33070 Caneva (PN)

0
€ 468.690
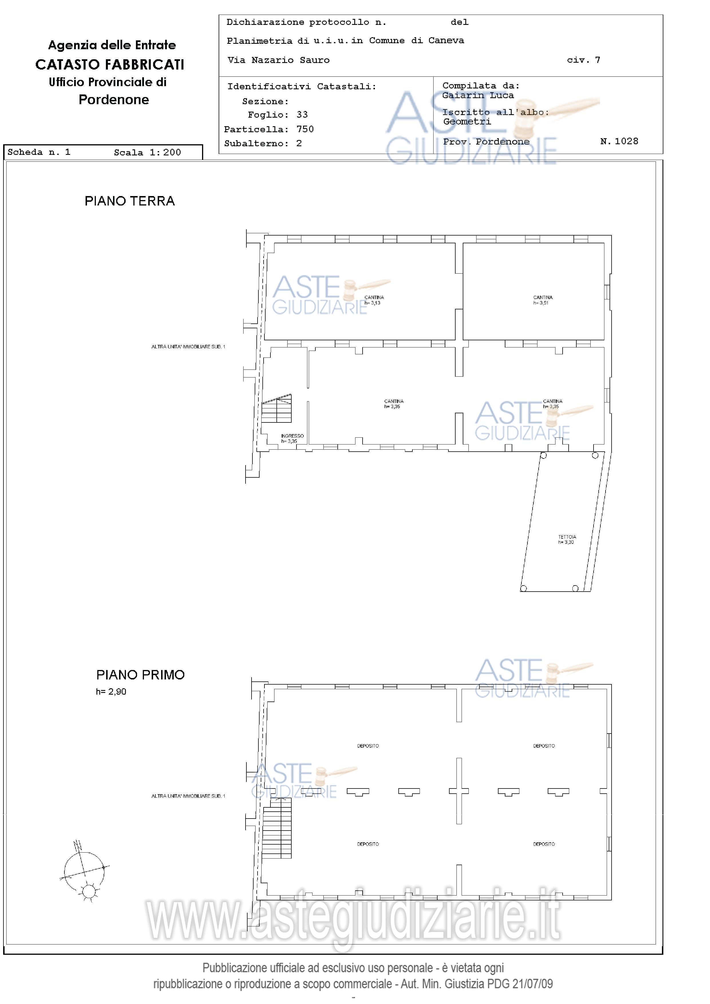
Vendita all'asta Senza incanto, con gara telematica sincrona mista - LOTTO 3: LOTTO TERZO: Il lotto ricomprende: le serre atte alla produzione e coltivazione arboree e floricole; 2 capannoni uso magazzino su unico piano f.t. della sup. di mq 508 oltre a mq 19 a soppalco. Il vano principale è destinato a deposito con area soppalcata. Ingresso a nord: zona destinata a spogliatoio, wc e magazzino. Nella p.lla 700: abitazione su 3 livelli f.t., corpo uso uffici/studio privato, magazzino/deposito. Irregolarità catastali edilizie sanabili. Prezzo base € 468.690,00 (offerta minima € 351.518,00). Data vendita 20/03/2026 ore 15:00. Giudice Dott. Elisa Tesco. Professionista delegato alla vendita Not. Giorgio Pertegato - Email "notaio@notaiopertegato.it". Custode Giudiziario Custode Giudiziario - Email "custodi@associazionenotarile.pn.it"; Tel. 3294536349. Rif. Tribunale di Pordenone - Contenzioso civile n. 385/2018

Superficie mq
Vani
Bagni
Piano 0

Tipologia di vendita Giudiziaria
Modalità di vendita Sincrona mista
Termine presentazione offerte 01/01/1900 ore 00:00
Data e ora inizio gara 20/03/2026 ore 15:00
Codice ID astegiudiziarie.it 4343690
0
€ 468.690

Ti interessa questa vendita?

north_east

Clicca qui per essere indirizzato alla scheda sul sito di provenienza

Bene di astegiudiziarie.it