highlight_off
Riferimento annuncio 41017 info

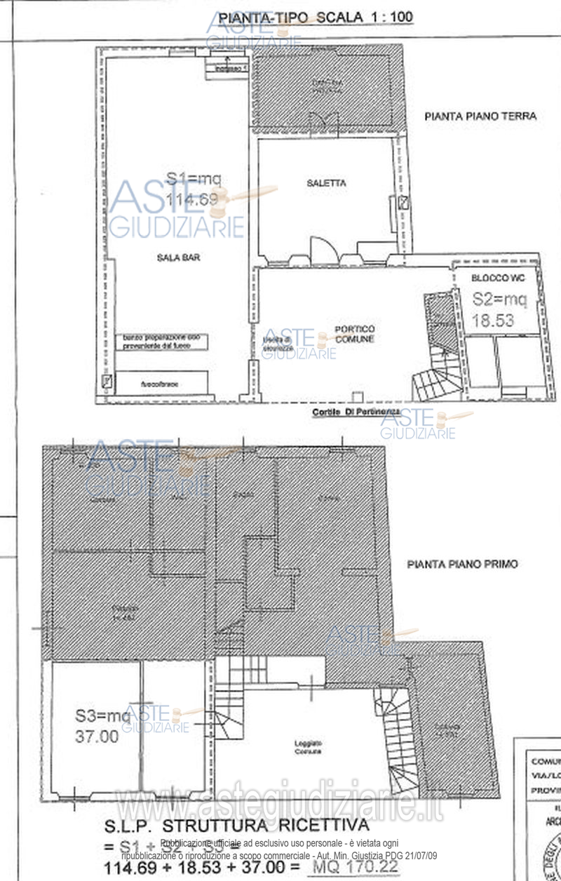
Fabbricato civile Via Larga, 43/O, 25081 Bedizzole (BS)

0
€ 133.178
Vendita all'asta Senza incanto, con gara telematica asincrona - LOTTO UNICO: Piena proprietà di locali su tre piani, terra, primo e secondo alcuni parzialmente al rustico facenti parte di un borgo ex rurale. In particolare al piano terra vi sono i locali della Locanda Cantarane, pubblico esercizio con attività ristorativa attualmente chiusa. Prezzo base € 133.177,66 (offerta minima € 99.883,25). Data inizio operazioni di vendita: 19/11/2025 ore 11:30. Professionista delegato alla vendita Not. Maria Cristina Pozzoli - Email "notaiomcp@studinotarilipozzoli.it"; Tel. 030222849. Custode Giudiziario Vittorio Corniani - Email "ivgbrescia@ivgbrescia.com"; Tel. 030348410. Rif. Tribunale di Brescia - Esecuzione immobiliare post legge 80 n. 61/2015

Superficie mq
Vani
Bagni
Piano 0

Tipologia di vendita Giudiziaria
Modalità di vendita Asincrona telematica
Termine presentazione offerte 01/01/1900 ore 00:00
Data e ora inizio gara 19/11/2025 ore 11:30
Codice ID astegiudiziarie.it 354720
0
€ 133.178

Ti interessa questa vendita?

north_east

Clicca qui per essere indirizzato alla scheda sul sito di provenienza

Bene di astegiudiziarie.it