Riferimento annuncio 318280
        
    
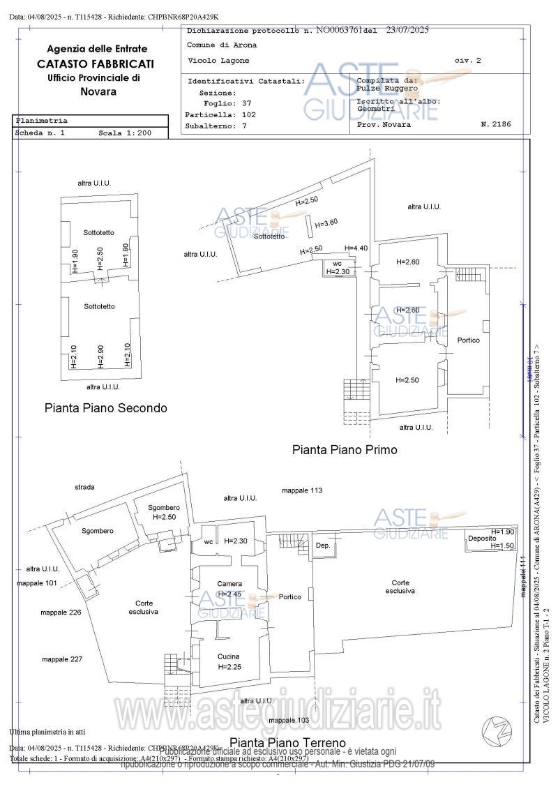
    Fabbricato civile Vicolo Lagone, 2, 28041 Arona NO, Italia, 28041 Arona (NO)
                
                10,00
            
            
                
                236,00
            
            
                
                2
            
            
                
                0
            
        
€ 67.200    
                Vendita all'asta Senza incanto, con gara telematica asincrona - LOTTO UNICO:  Fabbricato indipendente ad uso civile abitazione con area cortilizia pertinenziale e giardino esclusivo posto sul lato sud, sviluppato su tre piani fuori terra. Prezzo base € 67.200,00 (offerta minima € 50.400,00). Data inizio operazioni di vendita: 19/12/2025 ore 10:00. Giudice Dott. Antonietta Sacco. Custode Giudiziario  Aste Giudiziarie Inlinea Spa - Email "ufficiocustodie@astegiudiziarie.it".  Rif. Tribunale di Verbania - Espropriazione immobiliare (cartabia) n. 16/2025
            
   
| Superficie | 236,00 mq | 
|---|---|
| Vani | 10,00 | 
| Bagni | 2 | 
| Piano | 0 | 
| Tipologia di vendita | Giudiziaria | 
|---|---|
| Modalità di vendita | Asincrona telematica | 
| Termine presentazione offerte | 18/12/2025 ore 12:00 | 
| Data e ora inizio gara | 19/12/2025 ore 10:00 | 
 
                         
                         
                         
                         
                         
                         
                         
                         
                         
                         
                         
                         
                         
                         
                         
                         
                         
                         
                        