highlight_off
Riferimento annuncio 318551 info

Fabbricato civile Località Querceto n. 338 - Podere Cuculo, 52100 Arezzo (AR)

0
€ 600.000
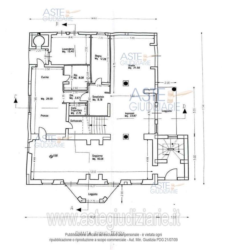
Vendita all'asta Senza incanto, con gara telematica sincrona mista - LOTTO UNICO: Fabbricato per civile abitazione al grezzo e non completato per tre piani fuori terra oltre ad un piano interrato, ubicato in posizione collinare e panoramica, composto da struttura portante in cemento armato e tamponature esterne con blocchi di laterizio, privo di serramenti ed infissi e mancante di finiture ed impianti, e numerosi appezzamenti di terreno agricolo di varia natura. Prezzo base € 600.000,00 (offerta minima € 450.000,00). Data vendita 22/01/2026 ore 12:00. Giudice Dott. Elisabetta Rodinò Di Miglione. Professionista delegato alla vendita Dott. Lucia Stefani - Email "lucia_stefani@libero.it"; Tel. 0575355443. Custode Giudiziario Istituto Vendite Giudiziarie Arezzo – Siena - Email "visite.ivg@gmail.com"; Cell. 3397337017; Tel. 0577318111. Rif. Tribunale di Arezzo - Espropriazione immobiliare (cartabia) n. 106/2024

Superficie mq
Vani
Bagni
Piano 0

Tipologia di vendita Giudiziaria
Modalità di vendita Sincrona mista
Termine presentazione offerte 21/01/2026 ore 13:00
Data e ora inizio gara 22/01/2026 ore 12:00
Codice ID astegiudiziarie.it 4338351
0
€ 600.000

Ti interessa questa vendita?

north_east

Clicca qui per essere indirizzato alla scheda sul sito di provenienza

Bene di astegiudiziarie.it